Hallo liebe CM Gemeinde
Es ist soweit,ich habe meinen Tower satt.
Ich habe vor meinen Pc bzw. die komplette Hardware in meinen Schreibtisch zu integrieren. Genauer gesagt in die Obersten der 2 Schubladen Meiner "zeichnung"
Folgendes habe ich vor.....
Die obersten 2 Schubladen entfernen,die alte führungsschiene der mittleren Schublade Nutzen und darauf eine Befestigung zu schrauben für das Mainboard.
Diese Kann ich dann nach der fertigstellung wie die schublade ein und ausfahren,entsprechende kabel natürlich verlängert und sinnvoll verlegt.
Meine Fragen hierzu:
Der Raum in dem die Hardware sitzt ist Größer als der Tower. Reicht es das netzteil einfach innerhalb zu befestigen ( Natürlich so das die lüfteröffnungen nicht verschlossen werden) oder sollte der Lüfter der jetzt hinten am Tower sitzt auch weiterhin rausblasen?
Welchen material würdet ihr zur befestigung der Mainboard hernehmen? Blechplatte? Edelstahlplatte? Holzplatte? Ein gewinde bekomme ich überall rein.
Ist es besser mehr abstand zum boden zu halten als die jetzigen abstandhalter vom Mainboard zum tower? Bringt das dem Mainboard Temperturtechnisch was wenn ich vielleicht 2 cm platz lasse zum boden? oder vielleicht 3 cm?
Jetzt die Frage die mich am meisten beschäftigt. Der Airflow....
Ich wollte evtl mit 4-6 langsam drehenden 120 mm Lüftern arbeiten 2-3 zum reinblasen und 2-3 zum rausblasen ( Netzteil würde auch rausblasen oder?) .
Was wird wohl besser sein,in einer geraden Linie von links nach rechts über die Hardware,oder leicht versetzt.
Links Unten rein und Rechts oben raus?
Ich benötige dann wohl eine Lüftersteuerung für die ganzen gehäuselüfter,Jemand gute erfahrungen mit bestimmten geräten? Passende lüfter wären auch nicht schlecht
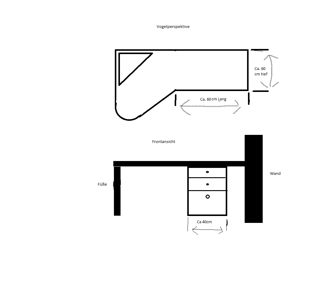
Zur Orientierung: Eine der Oberen beiden Schubladen ist ca 15 cm Hoch, Beide zusammen also ca 30 cm.
Habe zur wand rechts ca 20 cm Luft
Links ist der Fußraum mit ausreichend Luft zum "Atmen"
Hoffe aus Kontruktive Kritik und vielleicht noch neue Ideen zum Verbessern. Werde das Projekt in ca 3 Wochen beginnen und möchte bis dahin alles an Material besorgen das ich benötige.
Also das war es erstmal im Groben,eine selbsterstelle Zeichung werde ich einfügen
Es ist soweit,ich habe meinen Tower satt.
Ich habe vor meinen Pc bzw. die komplette Hardware in meinen Schreibtisch zu integrieren. Genauer gesagt in die Obersten der 2 Schubladen Meiner "zeichnung"
Folgendes habe ich vor.....
Die obersten 2 Schubladen entfernen,die alte führungsschiene der mittleren Schublade Nutzen und darauf eine Befestigung zu schrauben für das Mainboard.
Diese Kann ich dann nach der fertigstellung wie die schublade ein und ausfahren,entsprechende kabel natürlich verlängert und sinnvoll verlegt.
Meine Fragen hierzu:
Der Raum in dem die Hardware sitzt ist Größer als der Tower. Reicht es das netzteil einfach innerhalb zu befestigen ( Natürlich so das die lüfteröffnungen nicht verschlossen werden) oder sollte der Lüfter der jetzt hinten am Tower sitzt auch weiterhin rausblasen?
Welchen material würdet ihr zur befestigung der Mainboard hernehmen? Blechplatte? Edelstahlplatte? Holzplatte? Ein gewinde bekomme ich überall rein.
Ist es besser mehr abstand zum boden zu halten als die jetzigen abstandhalter vom Mainboard zum tower? Bringt das dem Mainboard Temperturtechnisch was wenn ich vielleicht 2 cm platz lasse zum boden? oder vielleicht 3 cm?
Jetzt die Frage die mich am meisten beschäftigt. Der Airflow....
Ich wollte evtl mit 4-6 langsam drehenden 120 mm Lüftern arbeiten 2-3 zum reinblasen und 2-3 zum rausblasen ( Netzteil würde auch rausblasen oder?) .
Was wird wohl besser sein,in einer geraden Linie von links nach rechts über die Hardware,oder leicht versetzt.
Links Unten rein und Rechts oben raus?
Ich benötige dann wohl eine Lüftersteuerung für die ganzen gehäuselüfter,Jemand gute erfahrungen mit bestimmten geräten? Passende lüfter wären auch nicht schlecht
Zur Orientierung: Eine der Oberen beiden Schubladen ist ca 15 cm Hoch, Beide zusammen also ca 30 cm.
Habe zur wand rechts ca 20 cm Luft
Links ist der Fußraum mit ausreichend Luft zum "Atmen"
Hoffe aus Kontruktive Kritik und vielleicht noch neue Ideen zum Verbessern. Werde das Projekt in ca 3 Wochen beginnen und möchte bis dahin alles an Material besorgen das ich benötige.
Also das war es erstmal im Groben,eine selbsterstelle Zeichung werde ich einfügen