Hallo,
ich mache mir gerade Gedanken wie ich im neuen Haus gutes WLAN bekomme. Die Ansprüche sind dabei eigentlich sehr niedrig:
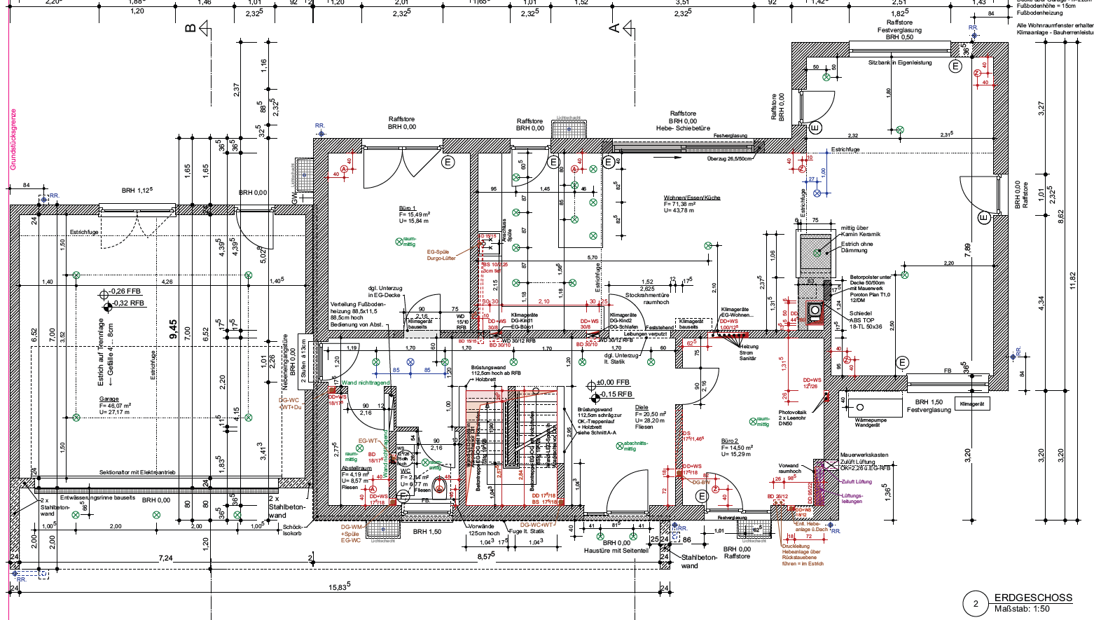
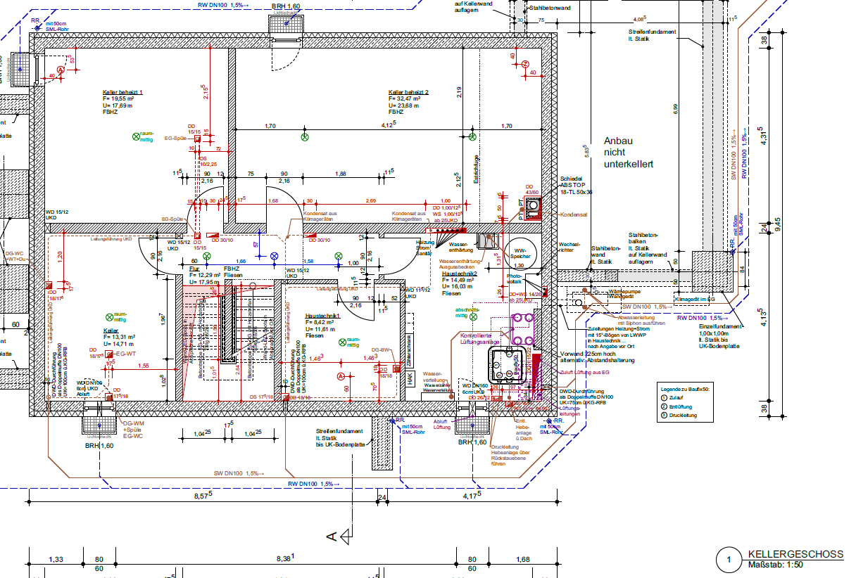
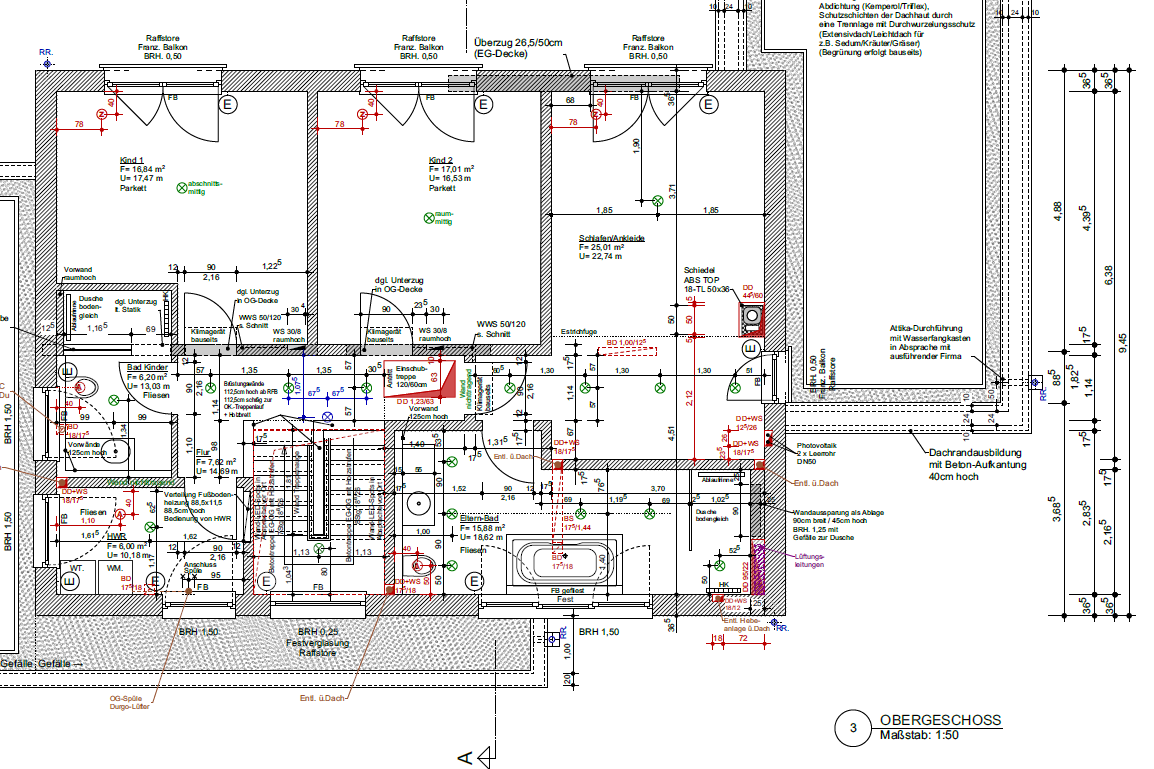
Im Anhang ist der Grundriss in dem die Position der APs (Position kann nicht mehr verändert werden) blau markiert ist.
Nun stehe ich vor der Frage welche Produkte konkret kaufen:
Wie ihr seht habe ich mich ein bisschen eingelesen, aber eigentlich nicht wirklich Ahnung... Primär geht es mir um ein gutes, stabiles, schnelles WLAN mit gutem Preisleistungsverhältnis. Wenn das ganze später mal gut nachrüstbar/erweiterbar ist wäre das schön, kann mir gut vorstellen mich in ein paar Jahren auch detaillierter damit zu beschäftigen und ggf. in Smart Home einzusteigen, aber die Anschaffung sollte jetzt erst mal nicht zu teuer werden.
Die Anschaffung ist für April geplant, längere Lieferzeiten oder kurzfristige nicht-Verfügbarkeit sind also kein Problem.
Vielen Dank vorab!
PS: Im Nachgang ärgere ich mich über die Platzierung im KG, Nutzung wird hauptsächlich in den zwei beheizten Räumen sein, dazwischen ist allerdings eine 24er Wand (HLZ). Ich hoffe das klappt trotzdem mit dem AP...
ich mache mir gerade Gedanken wie ich im neuen Haus gutes WLAN bekomme. Die Ansprüche sind dabei eigentlich sehr niedrig:
- IoT, VLANs, Kameras, getrenntes Gäste Netz o.ä. alles nicht erforderlich (Gäste Netz nice to have, aber nur wenn keine großen Aufpreise)
- 4 Access Points an der Decke sind eingeplant (CAT7 Netzwerkkabel für PoE gelegt)
- potenziell zukünftig um einen weiteren AP für Garten erweitert, der soll erst mal aber nicht gekauft werden
- LAN Verkabelung in vielen Räumen vorhanden, dadurch sollte ein Switch 16er (min) oder 24er (besser) gekauft werden
Im Anhang ist der Grundriss in dem die Position der APs (Position kann nicht mehr verändert werden) blau markiert ist.
Nun stehe ich vor der Frage welche Produkte konkret kaufen:
- Omada oder Unifi? Habe ich beides hier immer wieder gelesen. Optisch würde meine Frau eher zu Unifi tendieren
, würde aber ungern nur nach der Optik gehen... - Welchen AP? Tut es ein Lite? Oder doch besser ein Pro? (im Falle von UniFi...)
- Was ist noch zusätzlich erforderlich oder sinnvoll?
- Switch
- mit PoE (potenziell 5x PoE erforderlich) oder lieber über PoE injection?
- managed oder nicht?
- welches konkrete Modell bietet sich an?
- Controller
- erforderlich? falls ja, was wäre sinnvoll?
- welches konkrete Modell bietet sich an?
- Switch
Wie ihr seht habe ich mich ein bisschen eingelesen, aber eigentlich nicht wirklich Ahnung... Primär geht es mir um ein gutes, stabiles, schnelles WLAN mit gutem Preisleistungsverhältnis. Wenn das ganze später mal gut nachrüstbar/erweiterbar ist wäre das schön, kann mir gut vorstellen mich in ein paar Jahren auch detaillierter damit zu beschäftigen und ggf. in Smart Home einzusteigen, aber die Anschaffung sollte jetzt erst mal nicht zu teuer werden.
Die Anschaffung ist für April geplant, längere Lieferzeiten oder kurzfristige nicht-Verfügbarkeit sind also kein Problem.
Vielen Dank vorab!
PS: Im Nachgang ärgere ich mich über die Platzierung im KG, Nutzung wird hauptsächlich in den zwei beheizten Räumen sein, dazwischen ist allerdings eine 24er Wand (HLZ). Ich hoffe das klappt trotzdem mit dem AP...