UniFi Design Center – Kann man sich darauf verlassen?

Break16

Lt. Junior Grade
Registriert
Okt. 2006
Beiträge
480
Hallo,

wir bauen ein Einfamilienhaus, Baustart ist in ein paar Wochen. Ich muss mit dem Elektriker die Elektroplanung durchgehen und möchte jetzt schon die Access Points planen, damit ich das hinter mir habe und alles richtig entscheide.

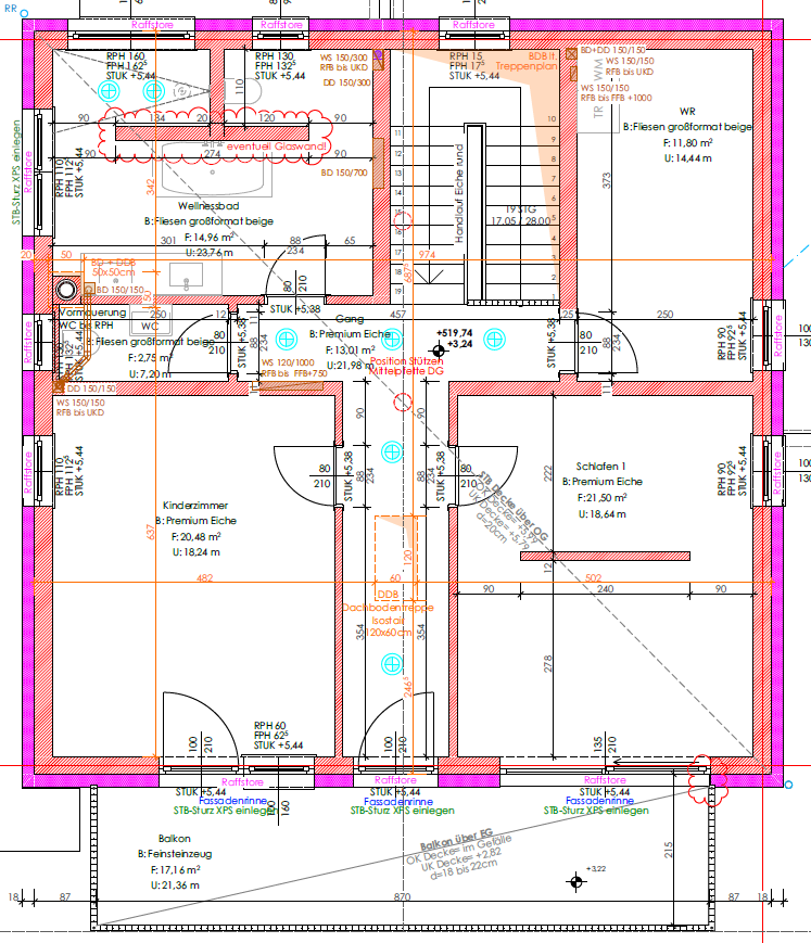
Ubiquiti hat ja dieses UniFi Design Center. Dort habe ich die Wände grob nachgezeichnet (ich habe nur Linien gezogen, bin mir aber nicht sicher, ob ich die Wände exakt mit Rechtecken darstellen muss) und die richtigen Baustoffe ausgewählt, also Mauerwerk und Beton, sowie den Maßstab korrekt eingegeben.

Dann habe ich einen U7 Pro platziert und war überrascht, dass ich mit einem Access Point fast das komplette Erdgeschoss mit WLAN abdecken kann. Die Wand im Wohnzimmer, an der der TV hängen soll, ist aus Stahlbeton.

Kann man sich auf diese Planung verlassen oder ist das zu schön, um wahr zu sein?

Legende:

1774031508755.png


ohne Planung sieht es im Erdgeschoss so aus:

1774031216904.png


mit der Planung im UniFi Design Center sieht es im Erdgeschoss mit 2.4 GHz so aus:

1774035241950.png


mit der Planung im UniFi Design Center sieht es im Erdgeschoss mit 5 GHz so aus:

1774035295572.png


ohne Planung sieht es im Obergeschoss so aus:

1774034272831.png


mit der Planung im UniFi Design Center sieht es im Obergeschoss mit 2.4 GHz so aus:

1774035441829.png


mit der Planung im UniFi Design Center sieht es im Obergeschoss mit 5 GHz so aus:

1774035499198.png


Wie ist eure Meinung?

danke!

LG
 

Anhänge

  • 1774032513507.png
    1774032513507.png
    385,5 KB · Aufrufe: 53
Kommt halt drauf an was hier die Grenzwerte sind. Wenn man definiert, dass bis -80db alles grün ist, joa dann sieht das so aus wie bei dir.
Ich kenne allerdings das Design Center nicht - gibt es da entsprechende Einstellungsmöglichkeiten überhaupt?
 
Sieht realistisch aus. Du machst aber auch LAN Anschlüsse, für alles was eine Netzwerkschnittstelle hat, oder verlässt du dich nur auf WIFI?
 
Da nicht alle Maße angegeben sind, kann ich nur die Grundfläche schätzen.

8,70 m x 8,70 m ? = circa 76qm

Dein U7Pro ist total zentral und sollte das abdecken.

Ich habe eine sehr rechteckige 78qm Whg. mit Sagem Provider Router und 2,4 und 5 ghz, der zentral mittig steht und ich habe in jeder Ecke besten Empfang. Auch durch Stahlbeton auf dem Balkon.
 
Grundsätzlich kann das schon hinkommen. Meine Eltern haben einen Unifi AC LR, also schon zwei Generationen älter, im Erdgeschoss und der deckt das Haus komplett ab. Auf dem Dachboden hat man natürlich keine 200 Mbit/s mehr, aber mehr als genug für Videostreaming etc.

gaym0r schrieb:
gibt es da entsprechende Einstellungsmöglichkeiten überhaupt?
Ja, gibt es. Standard ist grün bis -65 dBm, kann man aber auch verschieben.
 
  • Gefällt mir
Reaktionen: gaym0r
derchris schrieb:
Sieht realistisch aus. Du machst aber auch LAN Anschlüsse, für alles was eine Netzwerkschnittstelle hat, oder verlässt du dich nur auf WIFI?

natürlich :D hier geht es wirklich ausschließlich um die Access Points
 
  • Gefällt mir
Reaktionen: derchris
Unten im Wohnzimmer wirds ja doch schon bisschen schwach. Weil man dort ja doch öfters ist und mit 6 GHz die Wanddurchdringung noch schlechter wird vielleicht dort noch einen AP vorsehen?

Im OG würd ich, aufgrund der Schwächen in den Ecken, auch auf 2 AP gehen. Einmal bei der Treppe und einmal zwischen Dachbodentreppe und Fenster.
 
  • Gefällt mir
Reaktionen: Break16
Wird denn das verwendete Baumaterial irgendwie berücksichtigt?
Es ist ein grosser Unterschied ob das Kalksandsteine oder isopor oder gipsksrton Leichtbauwände sind.
Ich versorge ein 9x13m Massiv Eigenheim mit nur einer fb7490 im og.
In den wichtigen Räumen kommen Netto 250 bis 300mbit an.
Bei mir sind es isopor 17cm und 13cm, 16cm Betondecke und 4cm Estrich.
 
Wirklich sicher kannst du nur sein, wenn die Wand fertig ist und du nachmisst :)

Kann aber gerne bei mir mal nachmessen, habe ne Hohllochziegelwand mit 30er Dicke und ne 12,5er mit Vollziegel. Wäre dann aber erst Dienstag.
 
Es ist so, das das Baumaterial, welches mehr Masse hat auch mehr Dämpfung hat. Als Laie kann man einfach das Gewicht nehmen. Hohlblocksteine und Ütong sind leichter als Kalksandsteine oder Klinker.
Steine sind schwerer als Holz und Gipskarton.
Heute wird leichter gebaut, weil Luftschichten isolieren.
Bei "brick" weis man nicht was gemeint ist. Ziegel ist ein Oberbegriff. In USA kennen die kein Ütong und Unipor.
Ich kann Dir nur sagen, was ich hier am WSM20 habe. Wenn ich mit fritzappWLAN den Pegel vergleiche ohne Hinternis mit Hindernis Uniporwand 11,5+ 2x Putz die Dämpfung ist -11db bei 2,4Ghz 1m Entfernung.
Auffallend ist das in USA brick und wood die gleiche Dämpfung 5db haben.
Denke, das ist Spielzeug für professionelle Planung unbrauchbar.
Bei der Zeichung fallen die Beton-Wände auf. Im Bereich der Garage glaube ich das. Ist das dort Hanglage?
Bei der Wand im EG innen Wohnzimmer glaube ich das nicht, das die Wand aus Beton ist.
 

Anhänge

  • Screenshot_20260321_112122_FRITZ!App Wi-Fi.jpg
    Screenshot_20260321_112122_FRITZ!App Wi-Fi.jpg
    169,1 KB · Aufrufe: 33
  • Screenshot_20260321_112047_FRITZ!App Wi-Fi.jpg
    Screenshot_20260321_112047_FRITZ!App Wi-Fi.jpg
    170,3 KB · Aufrufe: 33
Zuletzt bearbeitet:
Break16 schrieb:
hier geht es wirklich ausschließlich um die Access Points
dann kannst du zur Not ja noch in ein paar "Dead spots" ergänzen.

Ein "Lessons learned" tip von mir: Es können NIE genug LAN Anschlüsse sein und sie sind immer an der falschen Stelle.
  • Eingang/Klingel (am besten 2x), Tür Schließanlage, etc pp
  • Im Außenbereich (Kameras?)
  • Im Haus für "Klingeln" und "Videogegensprechterminal" (wenn du da ein IP System nutzt)
  • Für Dashboards für Homeautomation
  • ...
 
  • Gefällt mir
Reaktionen: rezzler
Break16 schrieb:
Ich muss mit dem Elektriker die Elektroplanung durchgehen und möchte jetzt schon die Access Points planen, damit ich das hinter mir habe und alles richtig entscheide.
Bitte plane in jedem Raum einen Access-Point an der Decke. In größeren Räumen – die um eine Ecke gehen – in jedem gedachten Quadrat. Aber das scheint Ihr nicht zu haben.

Problem ist, dass die dichteren Modulation (QAM) nur bei direktem Sichtkontakt möglich sind. Daher ist egal was für eine Wand dazwischen ist. Und das war bereits vor fünf Jahren der Stand mit Wi-Fi 6. Wi-Fi 7 ist nochmal schlimmer. Und Du baust/planst ein Haus ja bis zur nächsten Kernsanierung in vielleicht 40 Jahren. Ändern wird sich das bis dahin kaum, weil einfach Physik, wird eher schlimmer.

Die andere Frage ist, ob wir jemals Anwendungen sehen werden, die über UHD – also Video-Streamen – hinaus gehen werden. Also ob man die gewaltigen Datenraten überhaupt brauchen wird.
Break16 schrieb:
Bitte nicht den, sondern den U6-Pro oder den U7-Pro-XGS, wegen AX5400 …
Break16 schrieb:
sieht es im Obergeschoss mit 5 GHz so aus
Richtig Spaß macht das Design-Center erst dann, wenn Du unten auf „Client Experience“ schaltest und ein Smartphone bastelst. Das sollte Deine Zielgröße sein. Auch kannst Du erst dann Kanal, Kanalbreite und von Wand- auf Decken-Montage ändern. Und UniFi hat noch einige Software-Bugs im Design-Center; so erkennt es zwar, dass ich aus Deutschland komme und begrenzt die Signalstärke bzw. zeigt eine Warnung beim Überschreiten, nimmt aber 240 MHz als Kanalbreite als Voreinstellung, was bisher bei uns nicht erlaubt ist. Und dort kann man dann auch in 2,4 GHz auf 20 MHz runter; alles Andere ist Unsinn.

Ehrlich gesagt, noch nie vorher mit dem Design-Center gespielt. Auf den ersten Blick kommt mir „Brick“ mit seiner Dämpfung zu niedrig vor. Ich würde Dir empfehlen eher überall von „Brick“ auf „Concrete“ zu wechseln. Und den Rest auf „Brick“ ändern. Das erscheint mir gefühlt realistischer. Aber das müsste Jemand beantworten, der das schonmal gemacht hat, also sein Haus mit dem Design-Center nachgebaut hat.

Auch würde ich direkt alles in 6 GHz planen. Braucht man aktuell im Haus nicht, aber auch hier, die Zukunft ist Dein Ziel.
 
  • Gefällt mir
Reaktionen: Break16 und Col. Jessep
@hildefeuer

Korrekt, Hanglage – wie hast du das erkannt?

Das Wohnzimmer, also die Wand, an der der Fernseher hängt (diese 477 cm lange Wand), wurde bewusst aus Beton gewählt. In meinem jetzigen Haus habe ich eine Hohlziegelmauer, und es war wirklich grausam, dort einen LG 77 Zoll OLED zu montieren. Deshalb habe ich mich diesmal für eine stabile Betonwand entschieden. Fehler?
 
Schwachsinn! Wenn vernünftige Dübel nicht reichen, nimmt man Gewindestangen mit Mutter auf beiden Seiten.
Habe gerätselt was zu einer Wand aus Beton geführt hat. Mehrkosten 5000 oder mehr und einige Nachteile.
Solche Betonbauweise ist auch bei der Hanglage völlig unnötig. klar wird das verkauft.
 
Zuletzt bearbeitet:
Zurück
Oben