Geringe Datenübertragungsrate mit FritzBox 7530 und Repeater 2400

Desmopatrick schrieb:
Was kann ich hier falsch bedienen?

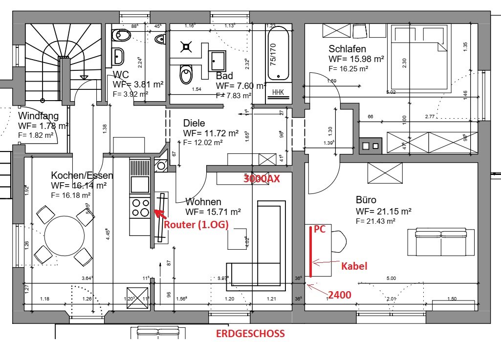
Seh ich das richtig in Deinem Plan das da eine 30cm Wand zwischen ist?

Bei mir stoert z.B. der Schacht wo die Rohre zum Obergeschoss gehen ungemein. Bei Anderen die ich kenne ist eine gut gedaemmte Holzwand oder eine mit Alufolie isolierte Innenwand der Killer. Beton/Fliesen/Metallisierte Tapeten. Dicke Waende, Fussbodenheizungen, Aquarien oder selbst riesige TV. Alles kann stoeren.

WLAN ist einfach zu anfaellig gegen alles was Wellen schlucken kann. Und da ist das 5GHz weitaus empfindlicher als das 2,4 Ghz.

Kannst Dir ja mal den HeatMapper von
https://www.ekahau.com/solutions/wi-fi-heatmaps/
greifen und Deine Huette ausleuchten.

Ich persoenlich haette, aufgrund der Einfachheit wie bei Dir, schon lange ein oder mehrere Kabel liegen.
 
  • Gefällt mir
Reaktionen: Baal Netbeck und redjack1000
BFF schrieb:
Seh ich das richtig in Deinem Plan das da eine 30cm Wand zwischen ist?
Das war ne ehemalige Außenwand, ja! Vom repeater Kabel zum PC, also Loch durch diese Wand und Kabel durch 🤷🏻‍♂️
 
20mm Loch und 50 cm Beton-Wand mach ich Dir in 10 Minuten, wenn kein Stahl dazwischen ist.
 
  • Gefällt mir
Reaktionen: redjack1000
Gestern mit iPhone 15 Pro mitten im Wohnzimmer (~volle Leistung) und am Standort PC…ist die Antenne vom iPhone besser als der WLAN Stick? Damit wäre ich ja zufrieden, weil die volle Leistung auch nur möglich ist, wenn ich alleine darauf zugreife!
 

Anhänge

  • IMG_8073.jpeg
    IMG_8073.jpeg
    45,5 KB · Aufrufe: 122
  • IMG_8074.jpeg
    IMG_8074.jpeg
    111,1 KB · Aufrufe: 124
Desmopatrick schrieb:
In der Übersicht stehen dann je (2,4GHz und 5GHz) um 200Mbit zwischen FritzBox und Repeater. Mesh ist an.
Am Computer kommen dann 100 - max. 150mbit (Download) an - das kann doch nicht sein?
Mach doch genau was es soll, nicht brutto und Netto verwechseln, 200 Mbit brutto ist im 5GHz außerdem nicht so gut was die signalstärke betrifft.
Und die 7530 ist halt auch nicht die beste ausgangsposition für gutes WLAN.
Repeater näher an den Router bringen gegebenenfalls über den Router wegen kürzeren Weg durch das deckengeschoss.
Am besten verkabeln dann bist du die Probleme los, oder guten Router mit 4x4 WLAN nehmen, da ist die abstrahlungs Charakteristik und Antennen Design auch besser weil 360° in alle Richtungen anstatt nur donut-förmig auf einer Ebene.

Weiß nicht ob das hier schon erwähnt wurde, habe jetzt nicht alles durchgelesen just my 2 Cents. 😅
 
  • Gefällt mir
Reaktionen: Baal Netbeck
Desmopatrick schrieb:
Speedtest sagt am PC erst knapp über 100Mbit und fällt dann schlagartig auf knapp 60Mbit
Kannst Du nochmal mit der FRITZ!App WLAN testen? Jedenfalls merkwürdig, denn die Verbindung ist zwischen den FRITZ!-Produkten laut der Mesh-Übersicht mit 1 Gbit/s hervorragend. Der FRITZ!Repeater 3000 AX hilft hier auf jeden Fall, weil dann ein Funkmodul nur für das WLAN-Repeaten zuständig ist. Aber ich befürchte, dass Du ein ganz andere Problem hast und der FRITZ!Repeater 3000 AX das dann auch nicht behebt.
Desmopatrick schrieb:
TP-Link Archer T3U
Hattest Du den nachträglich gekauft? So wie ich Dein Ausgangspost verstand, hattest Du bereits den FRITZ!Repeater per LAN-Kabel an den Computer angeschlossen, also beides im Büro und ohne WLAN-Adapter – und das war erschreckend langsam? Hiervon bitte auch mal die Mesh-Übersicht.
 
norKoeri schrieb:
Hattest Du den nachträglich gekauft? So wie ich Dein Ausgangspost verstand, hattest Du bereits den FRITZ!Repeater per LAN-Kabel an den Computer angeschlossen, also beides im Büro und ohne WLAN-Adapter – und das war erschreckend langsam? Hiervon bitte auch mal die Mesh-Übersicht.
Hatte immer einen WLAN-Stick am PC, der letzte ist leider abgebrochen.
Testweise war der Repeater im Büro und der PC per LAN-Kabel dran, allerdings war dann die Verbindung zwischen Router und Repeater nicht mehr so gut, wie wenn der Repeater im Wohnzimmer steht.
Deshalb habe ich den Repeater auch wieder ins Wohnzimmer (quasi maximale Leistung auf 2,4+5GHz) und per WLAN den PC verbunden.
Hab mir deshalb dann den TP-Link Stick bestellt, aber der verbindet sich schlecht, dauert manchmal ewig zu verbinden und die Leistung ist schlecht, was ich nicht verstehen kann, denn auf Luftlinie <3 Meter und eine (ehem.) Außenwand zum Repeater kann doch die Verbindung am PC nicht derart einbrechen - am iPhone sah es testweise am Standort vom PC viel besser aus und ohne Einbruch (Speedtest dauerhaft 170MBit Download)
norKoeri schrieb:
Kannst Du nochmal mit der FRITZ!App WLAN testen?
iPhone hat dauerhaft ca 400MBit am Standort vom PC

Aktueller Plan: Heute Fritz 860 Stick besorgen und auf Besserung hoffen, wenn nicht Loch für LAN Kabel bohren oder besseren Repeater besorgen.
 
Würde es anders machen, also FRITZ!Repeater 3000 AX in Wohnen aufstellen und FRITZ!Repeater 2400 an den Computer. Offenbar hat Dein Computer irgendwelche Probleme mit WLAN-Sticks. Könnten wir jetzt langwierig analysieren inklusive wild Hardware tauschen … aber die sauberste Lösung ist und bleibt eine WLAN-Bridge in Form einen WLAN-Repeaters wie dem FRITZ!Repeater (oder eines TP-Link RE5xx bzw. 6xx).
 
Bedenkt aber bei der Sache dass der Router der flaschenhals bleibt, nur 2x2 80 MHz WiFi 5, über ~520 Mbit/s werdet ihr damit niemals kommen, ich würde sogar eher mit 400 Mbit/s im Schnitt rechnen. 👍
 
  • Gefällt mir
Reaktionen: Desmopatrick
Desmopatrick schrieb:
Also Repeater in Reihe schalten?
Ja. Denn in Deinem Fall spielt der Repeater am Computer lediglich Bridge, also genau wie ein WLAN-Stick. Und ein FRITZ!Repeater 3000 AX bietet ein eigenes Funkmodul für das Repeating zur FRITZ!Box. Dadurch kannst Du das WLAN im Büro genauer ausrichten und hast keine Treiber-Geschichten auf dem Computer.
 
Zuletzt bearbeitet: (Rechtschreibung und Grammatik)
  • Gefällt mir
Reaktionen: Engaged und Desmopatrick
Engaged schrieb:
Bedenkt aber bei der Sache dass der Router der flaschenhals bleibt, nur 2x2 80 MHz WiFi 5, über ~520 Mbit/s werdet ihr damit niemals kommen, ich würde sogar eher mit 400 Mbit/s im Schnitt rechnen. 👍
ok, hauptsache ich bekomme weitestgehend die 250MBit Download (Flaschenhals Telekom^^) zu allen Geräten, was bis auf den PC funktioniert
 
  • Gefällt mir
Reaktionen: Engaged
Desmopatrick schrieb:
Was spricht eigentlich gegen ne Powerline?
Du möchtest über 250 Mbit haben und zwar netto und fragst dann nach Powerline, und das auch noch bei SVDSL?
Schau einfach hier im Forum was das für ein Müll ist ...

Was spricht dagegen sich zu überwinden und einmal zu verkabeln und dann ewig Ruhe zu haben?
 
  • Gefällt mir
Reaktionen: Asghan und redjack1000
Gerade Fritz Repeater 3000 AX gekauft und der 2400 kommt ins Büro und wird per Kabel an pc gesteckt! Somit sollte ich maximale Leistung im Wohnzimmer (ps5, ipad etc) haben und über die kurze Distanz plus wand zum 2400 am Computer vernünftig surfen können und auch mal ein Download ordentlich laufen
 
Zuletzt bearbeitet:
  • Gefällt mir
Reaktionen: redjack1000 und Engaged
Zurück
Oben