Du verwendest einen veralteten Browser. Es ist möglich, dass diese oder andere Websites nicht korrekt angezeigt werden.
Du solltest ein Upgrade durchführen oder einen alternativen Browser verwenden.
Du solltest ein Upgrade durchführen oder einen alternativen Browser verwenden.
Kaufberatung 5.1 Boxen für AVR
- Ersteller Revan335
- Erstellt am
Basti__1990
Admiral
- Registriert
- Dez. 2010
- Beiträge
- 9.749
er könnte genauso die Metas XT Serie kaufen.
4 * 129 = 516 Euro
http://geizhals.de/heco-metas-xt-301-kompaktlautsprecher-stueck-schwarz-a503513.html
+
149 Euro
http://geizhals.de/heco-metas-xt-center-31-centerlautsprecher-stueck-schwarz-a477823.html
= 665 Euro
Da bleiben 335 Euro für einen guten AVR wie Denon X1000
4 * 129 = 516 Euro
http://geizhals.de/heco-metas-xt-301-kompaktlautsprecher-stueck-schwarz-a503513.html
+
149 Euro
http://geizhals.de/heco-metas-xt-center-31-centerlautsprecher-stueck-schwarz-a477823.html
= 665 Euro
Da bleiben 335 Euro für einen guten AVR wie Denon X1000
- Registriert
- Aug. 2009
- Beiträge
- 2.279
Kann mir einer eine Seite nennen, wo ich den Denon und den Yamaha übersichtlich vergleichen kann?
So langsam gefällt mir der Denon nämlich doch besser, will aber die Features noch nebeneinander vergleichen.
Die Seitlichen Lüftungen des Denon bringen mir mehr Platz, da ich dann bspw. meinen SAT-Receiver da drauf stellen kann.
Ich hoffe ich hab mein Zimmer gut getroffen.





Zum Hörverhalten.
Da kann ich schlecht differenzieren, ich höre fast Täglich Musik oder Hörbücher.
Und Abends entweder einen TV Film/Serie oder was von meiner QNAP/DVD/Blu-Ray Sammlung.
Oder wenn Besuch kommt, gucken wir uns Filme oder Serien an.
Vor kurzen habe ich angefangen, meine Musik CD's als FLAC mit Exact Audio Copy zu speichern.
Und zum Thema welche Musik, sehr vieles, Klassik, 80er, 90er, Rock, ...
Videospiele an der PS3 oder PC spiele ich mal ein paar Zeit habe.
Und da eher Rollenspiele ala Kotor/Gothic/Dragon Age oder Mass Effect.
Spiele wie Portal oder Strategiespiele sind aber auch dabei.
Aber keine Ego-Shooter ala Call of Duty oder Counter Strike.
@Madman1209: Vom Aussehen sind die HECO schon gut.
Von der Technik müsste ich mir noch genauer angucken.
Muss die dann nur noch an die Decke kriegen, den Center würde ich dann vor den Fernseher stellen.
@Basti__1990: Da würde dann aber noch der Subwoofer fehlen.
So langsam gefällt mir der Denon nämlich doch besser, will aber die Features noch nebeneinander vergleichen.
Die Seitlichen Lüftungen des Denon bringen mir mehr Platz, da ich dann bspw. meinen SAT-Receiver da drauf stellen kann.
Ich hoffe ich hab mein Zimmer gut getroffen.





Zum Hörverhalten.
Da kann ich schlecht differenzieren, ich höre fast Täglich Musik oder Hörbücher.
Und Abends entweder einen TV Film/Serie oder was von meiner QNAP/DVD/Blu-Ray Sammlung.
Oder wenn Besuch kommt, gucken wir uns Filme oder Serien an.
Vor kurzen habe ich angefangen, meine Musik CD's als FLAC mit Exact Audio Copy zu speichern.
Und zum Thema welche Musik, sehr vieles, Klassik, 80er, 90er, Rock, ...
Videospiele an der PS3 oder PC spiele ich mal ein paar Zeit habe.
Und da eher Rollenspiele ala Kotor/Gothic/Dragon Age oder Mass Effect.
Spiele wie Portal oder Strategiespiele sind aber auch dabei.
Aber keine Ego-Shooter ala Call of Duty oder Counter Strike.
@Madman1209: Vom Aussehen sind die HECO schon gut.
Von der Technik müsste ich mir noch genauer angucken.
Muss die dann nur noch an die Decke kriegen, den Center würde ich dann vor den Fernseher stellen.
@Basti__1990: Da würde dann aber noch der Subwoofer fehlen.
Zuletzt bearbeitet:
(Hörverhalten+Antworten ergänzt)
Basti__1990
Admiral
- Registriert
- Dez. 2010
- Beiträge
- 9.749
den Subwoofer kannst du auch erstmal weglassen.
bei den Metas XT kannst du später mal einen Sub für 300€ nachrüsten, wie willst du bei den Victa's mit Sub dann Sound-Qualität nachrüsten?
wenn du bisher keinen echten großen Subwoofer gewohnt warst, dann wirst du mit den Heco Metas XT 301 auch nichts vermissen.
was willst du bei den beiden AVRs eigentlich groß vergleichen?
mal abgesehen vom Einmesssystem können die doch eh alles das gleiche. Leistung haben auch alle genug für dein Zimmer.
bei den Metas XT kannst du später mal einen Sub für 300€ nachrüsten, wie willst du bei den Victa's mit Sub dann Sound-Qualität nachrüsten?
wenn du bisher keinen echten großen Subwoofer gewohnt warst, dann wirst du mit den Heco Metas XT 301 auch nichts vermissen.
was willst du bei den beiden AVRs eigentlich groß vergleichen?
mal abgesehen vom Einmesssystem können die doch eh alles das gleiche. Leistung haben auch alle genug für dein Zimmer.
- Registriert
- Aug. 2009
- Beiträge
- 2.279
Die zwei Systeme mit Subwoofer die ich kenne bzw. genutzt habe ist das Logitech Z523 und mein aktuelles Edifier C2 Plus.
Werde wahrscheinlich zum Denon greifen.
Überlege aber jetzt ob ich nicht den X2000 nehmen soll,
in Hinblick auf die Zukunft ala 4k HD und Features wie Skalierung sowie Hochwertigeren Komponenten.
Werde wahrscheinlich zum Denon greifen.
Überlege aber jetzt ob ich nicht den X2000 nehmen soll,
Zuletzt bearbeitet:
BOBderBAGGER
Fleet Admiral
- Registriert
- Feb. 2008
- Beiträge
- 16.203
in Hinblick auf die Zukunft ala 4k HD und Features wie Skalierung.
bis es soweit ist gibt kommen noch unzählige andere receiver
kauf lieber erst mal anständige Lautsprecher
Basti__1990
Admiral
- Registriert
- Dez. 2010
- Beiträge
- 9.749
eben, wenn du mal geld hast ein 4K TV zu kaufen, dann willst du auch nicht mehr einen Einsteiger-X2000 AVR nutzen 
FooFighter
Captain
- Registriert
- Juni 2003
- Beiträge
- 3.164
Ich habe bei den Zeichnungen das Problem, Sitzposition am Schreibtisch, - den LED an der Wand und die Sitzposition aufm Bett bei 5.1 unter einen Hut zu bekommen. Betrachte ich den LED als Mittelpunkt eines 5.1 Systems, wieviel Platz ist nach rechts?
Wird hauptsächlich/primär am Schreibtisch gehört? Schon mal über Nahfeld nachgedacht?
Kompakte müssten, wenn vermutlich direkt an die Wand. Dann sollte das BR geschlossen werden, welches sich bei kompakten i. d. R. immer auf der Rückseite befindet. Das ganze ohne zusätzlichen Bassisten,... ich weiss nicht!
Spontan würde ich fast vermuten, d. Dir zwei aktive Nahfeldmonitore aufm Schreibtisch am meisten Freude bereiten würden. Zumal Du Dir dann das Geraffel rund um einen AVR dann komplett sparen kannst. Da könntest Du, entsprechende Ausgänge an Deiner Soundkarte vorausgesetzt alles direkt am PC anschliessen. Da müsste man dann nur überlegen, wie man ggf. die PS anschliesst...
Wird hauptsächlich/primär am Schreibtisch gehört? Schon mal über Nahfeld nachgedacht?
Kompakte müssten, wenn vermutlich direkt an die Wand. Dann sollte das BR geschlossen werden, welches sich bei kompakten i. d. R. immer auf der Rückseite befindet. Das ganze ohne zusätzlichen Bassisten,... ich weiss nicht!
Spontan würde ich fast vermuten, d. Dir zwei aktive Nahfeldmonitore aufm Schreibtisch am meisten Freude bereiten würden. Zumal Du Dir dann das Geraffel rund um einen AVR dann komplett sparen kannst. Da könntest Du, entsprechende Ausgänge an Deiner Soundkarte vorausgesetzt alles direkt am PC anschliessen. Da müsste man dann nur überlegen, wie man ggf. die PS anschliesst...
FooFighter
Captain
- Registriert
- Juni 2003
- Beiträge
- 3.164
Zeichne mal bitte auf der letzten Grafik ein, wie Du am liebsten ein 5.1 aufstellen würdest. Bitte gebe auch an, wie weit die LSP auseianderstehen würden. Danke!
FooFighter
Captain
- Registriert
- Juni 2003
- Beiträge
- 3.164
Bitte entschuldige meine späte Antwort.
Ich hoffe Du hast beim einzeichnen selbst erkannt, d. die Anordnung sehr ungünstig ist?
Wenn die kleinen 4 Kreise jeweils die beiden Fronts und Rears dastellen sollen, der etwas grössere einen Woofer:
Zu wenig Platz zwischen den Lautsprechern. Für einigermassen gescheite Kompaktlautsprecher solltest Du mindestens 1,5 Meter Abstand zwischen den einzelnen Front-Lautsprechern haben. Einen Center kannst Du so dort einfach nicht unterbringen. Dann müsstest Du schon etwa 2,5 bis 3 Meter in die Breite gehen.
Also in meinen Augen stehs Du vor folgender Wahl:
a) Zimmer umgestalten, -> TV zentraler an die Wand, ggf. auch den Schreibtisch, sonst hast Du keinen Hörplatz...
b) auf einen Center verzichten ... naja... trotzdem eng...
c) wenn umräumen ausgeschlossen ist.. Stereo?
So wie zum Beispiel das Bett ausgerichtet ist, kommt so eh nix vom Heimkino an, ausser Du sitzt quer drin. Am Schreibtisch wärst Du mit einer Stereo-Aktiv-Lösung im Nahfeld vermutlich am besten bedient.
Tschuldige wenn ich da ein wenig vermutlich gg. Dein Vorhaben und Deine Meiung diskutier. Einfach meine Meinung
Ich hoffe Du hast beim einzeichnen selbst erkannt, d. die Anordnung sehr ungünstig ist?
Wenn die kleinen 4 Kreise jeweils die beiden Fronts und Rears dastellen sollen, der etwas grössere einen Woofer:
Zu wenig Platz zwischen den Lautsprechern. Für einigermassen gescheite Kompaktlautsprecher solltest Du mindestens 1,5 Meter Abstand zwischen den einzelnen Front-Lautsprechern haben. Einen Center kannst Du so dort einfach nicht unterbringen. Dann müsstest Du schon etwa 2,5 bis 3 Meter in die Breite gehen.
Also in meinen Augen stehs Du vor folgender Wahl:
a) Zimmer umgestalten, -> TV zentraler an die Wand, ggf. auch den Schreibtisch, sonst hast Du keinen Hörplatz...
b) auf einen Center verzichten ... naja... trotzdem eng...
c) wenn umräumen ausgeschlossen ist.. Stereo?
So wie zum Beispiel das Bett ausgerichtet ist, kommt so eh nix vom Heimkino an, ausser Du sitzt quer drin. Am Schreibtisch wärst Du mit einer Stereo-Aktiv-Lösung im Nahfeld vermutlich am besten bedient.
Tschuldige wenn ich da ein wenig vermutlich gg. Dein Vorhaben und Deine Meiung diskutier. Einfach meine Meinung
kammerjaeger1
Banned
- Registriert
- Okt. 2010
- Beiträge
- 5.806
Ich drücke es mal etwas drastischer aus: Die gesamte Aufstellung ist eine einzige Katastrophe! Wo sollen denn da Stereo- oder gar Surround-Effekte wahrgenommen werden? Da müsstest Du Dich schon genau in die Mitte des Raumes stellen, um überhaupt so etwas wie Effekte zu merken, egal wie die Pegel der einzelnen Speaker angepasst werden... 
Ehm es ist schön das der Center unter dem TV steht, aber wie der Name es schon andeutet, der Center muss in die Mitte zwischen die beiden Frontboxen. Dort steht im Idealfall auch der TV, die Rears bringen da auch garnix, zumindest nicht für deine Hörpositionen.
So wird das leider nichts
So wird das leider nichts
Audioliebhaber
Banned
- Registriert
- Dez. 2012
- Beiträge
- 8.615
Mach doch mal Fotos! Ist besser. 
- Registriert
- Aug. 2009
- Beiträge
- 2.279
Bitte sehr:

Gibt es eine Möglichkeit mein C2 Plus von Edifier an den Denon anzuschließen ?
Das ist natürlich nur solange bis ich vernünftige Boxen habe.
PC geht aktuell über die Grafikkarte (HDMI) an den TV, da müsste wenn ich mich nicht täusche das Audiosignal ja mit übertragen werden.
Fehlt dann nur noch die Ausgabequelle.
Gibt es eine Möglichkeit mein C2 Plus von Edifier an den Denon anzuschließen ?
Das ist natürlich nur solange bis ich vernünftige Boxen habe.
PC geht aktuell über die Grafikkarte (HDMI) an den TV, da müsste wenn ich mich nicht täusche das Audiosignal ja mit übertragen werden.
Fehlt dann nur noch die Ausgabequelle.
Zuletzt bearbeitet:
(Temporäre Ausgabequelle ergänzt)
Gamefaq
Admiral
- Registriert
- Jan. 2005
- Beiträge
- 7.617
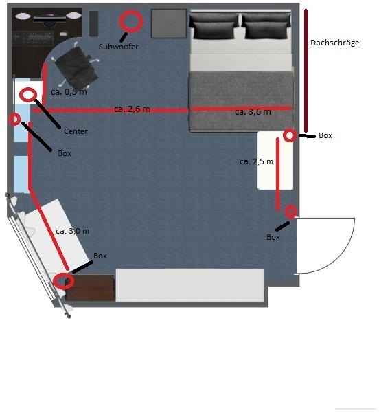
Aus akustischer Sicht ist dein Raum ein Katastrophe. Denn er stellt ein Quadrat dar bei dem aber eine für Heimkino richtige Aufstellung aktuell praktisch unmöglich ist. Ich werde mal versuchen es für dich verständlich zu erklären.
Erstmal sitzt du direkt an der Wand was durch Dipole zwar ausgeglichen werden kann aber da kommt dann eine Schräge in den Weg die die Aufhängung des rechten Dipols verhindert weil dein TV zu nah zur rechten Wand Montiert ist was wieder rum an der Position deines Bettes liegt (damit du noch im Bett sitzen kannst ohne das der TV zu weit schräg versetzt Montiert ist).
Das gleiche gilt für vorne denn auch dort auf der gleichen Seite ist die Schräge im Weg für die Rechte Lautsprecher Box.
Durch die Position des TV und der dazu im Vergleich weit Entfernten Sitzposition ensteht ein starkes Rechteck.
Um nun die für Stereo aber auch Heimkino erforderliche Stereodreieck Aufstellung der Front zu erreichen, können die Lautsprecher Vorne Links/Rechts nicht weit genug von einander Weg aufgestellt werden. Denn du hast keine (laut deiner Zeichnung) 2,60 Meter Platz um die Boxen soweit von einander weg zu stellen wie du sitzt. Denn bedenke der Center ist die Mitte und die Boxen links/rechts sollten die gleiche Entfernung zueinander UND dir(!) haben. Denn der AVR kann das nur begrenzt bei der Einmessung ausgleichen. Damit du besser nachvollziehen kannst hier ein Bild als Vergleich wo auch jemand eine Schräge hat ABER die Einrichtung soweit versetzt ist das es trotzdem geht. Da die Schräge links, der AVR durch Senkung des Pegels ausgleichen kann (die Wand/Schräge wirkt wie ein Trichter wodurch die Linke Box lauter spielt ohne Anpassung) aber die Frontlautsprecher zueinander und dem Zuhörer die richtige Entfernung haben.
(wie du sehen kannst ist das Sideboard 1,80M + etwa 20 Zentimerter Links/Rechts, wodurch die Entfernung der Personen am anderen Seite maximal 2,40 Meter betragen sollte)
Damit dein Zimmer für ein Heimkino zumindest in Frage kommt müstest du die halbe Einrichtung ändern. Das bedeutet TV guten Meter bis 1,5 Meter nach Links aus der Ecke raus. Der Schrank neben der Tür weg und Bett bis zur Tür vor und um 45 Grad drehen. So hättest du über dem Bett Links/Rechts (oberhalb der Tür) Platz für Dipole und vorne könnten halbwegs weit genug von einander weg 2 Regal Lautsprecher Links/Rechts Positioniert werden. Der TV sollte auch ein ganze Ecke TIEFER hängen.
Da ich denke das so eine Umstellung für dich nicht in Frage kommen wird, solltest du dich auf Stereo (am PC) beschränken. Und TV, TV sein lassen bis du mal renovierst oder umziehst.
Erstmal sitzt du direkt an der Wand was durch Dipole zwar ausgeglichen werden kann aber da kommt dann eine Schräge in den Weg die die Aufhängung des rechten Dipols verhindert weil dein TV zu nah zur rechten Wand Montiert ist was wieder rum an der Position deines Bettes liegt (damit du noch im Bett sitzen kannst ohne das der TV zu weit schräg versetzt Montiert ist).
Das gleiche gilt für vorne denn auch dort auf der gleichen Seite ist die Schräge im Weg für die Rechte Lautsprecher Box.
Durch die Position des TV und der dazu im Vergleich weit Entfernten Sitzposition ensteht ein starkes Rechteck.
Um nun die für Stereo aber auch Heimkino erforderliche Stereodreieck Aufstellung der Front zu erreichen, können die Lautsprecher Vorne Links/Rechts nicht weit genug von einander Weg aufgestellt werden. Denn du hast keine (laut deiner Zeichnung) 2,60 Meter Platz um die Boxen soweit von einander weg zu stellen wie du sitzt. Denn bedenke der Center ist die Mitte und die Boxen links/rechts sollten die gleiche Entfernung zueinander UND dir(!) haben. Denn der AVR kann das nur begrenzt bei der Einmessung ausgleichen. Damit du besser nachvollziehen kannst hier ein Bild als Vergleich wo auch jemand eine Schräge hat ABER die Einrichtung soweit versetzt ist das es trotzdem geht. Da die Schräge links, der AVR durch Senkung des Pegels ausgleichen kann (die Wand/Schräge wirkt wie ein Trichter wodurch die Linke Box lauter spielt ohne Anpassung) aber die Frontlautsprecher zueinander und dem Zuhörer die richtige Entfernung haben.
(wie du sehen kannst ist das Sideboard 1,80M + etwa 20 Zentimerter Links/Rechts, wodurch die Entfernung der Personen am anderen Seite maximal 2,40 Meter betragen sollte)
Damit dein Zimmer für ein Heimkino zumindest in Frage kommt müstest du die halbe Einrichtung ändern. Das bedeutet TV guten Meter bis 1,5 Meter nach Links aus der Ecke raus. Der Schrank neben der Tür weg und Bett bis zur Tür vor und um 45 Grad drehen. So hättest du über dem Bett Links/Rechts (oberhalb der Tür) Platz für Dipole und vorne könnten halbwegs weit genug von einander weg 2 Regal Lautsprecher Links/Rechts Positioniert werden. Der TV sollte auch ein ganze Ecke TIEFER hängen.
Da ich denke das so eine Umstellung für dich nicht in Frage kommen wird, solltest du dich auf Stereo (am PC) beschränken. Und TV, TV sein lassen bis du mal renovierst oder umziehst.
Zuletzt bearbeitet:
- Registriert
- Aug. 2009
- Beiträge
- 2.279
Vielen, Vielen Dank für Eure Hilfe.
Ok, dann werde ich das mit dem 5.1 erst mal lassen.
Wäre es denn eine Möglichkeit, eine Stereo Lösung für TV und PC zu finden.
Sprich 2 Boxen für PC und 2 für TV.
Subwoofer würde ich dann wenn möglich für beides nehmen.
Ok, dann werde ich das mit dem 5.1 erst mal lassen.
Wäre es denn eine Möglichkeit, eine Stereo Lösung für TV und PC zu finden.
Sprich 2 Boxen für PC und 2 für TV.
Subwoofer würde ich dann wenn möglich für beides nehmen.
kammerjaeger1
Banned
- Registriert
- Okt. 2010
- Beiträge
- 5.806
Revan335 schrieb:Subwoofer würde ich dann wenn möglich für beides nehmen.
Das wird schwierig. Ich würde da einen AVR mit Zone2-Möglichkeit nehmen.
Ähnliche Themen
- Antworten
- 45
- Aufrufe
- 4.521
- Antworten
- 37
- Aufrufe
- 2.856
- Antworten
- 11
- Aufrufe
- 1.419
- Antworten
- 7
- Aufrufe
- 917
- Antworten
- 18
- Aufrufe
- 1.746

