Suche TV für ~1500€

timo2607

Lieutenant
Registriert
Feb. 2011
Beiträge
733
Hallo liebe Community,

ich bin aktuell dabei mich um einen neuen TV zu bemühen. Mein Problem ist aktuell, dass ich mich nicht zwischen einen Plasma und LCD mit LED Technik entscheiden kann.

Für folgendes wird der TV benötigt.

- Bluray Filme
- HD Programme
- Xbox 360
- Bundesliga+CL (sky)

3D würde ich zwar "mitnehmen" ist aber für mich mit Sicherheit kein Kaufkriterium.

Außerdem möchte ich einen großen TV haben, also ~50 Zoll.

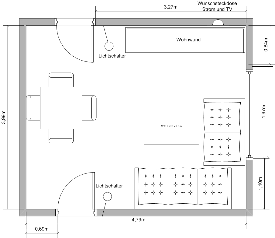
Hauptsächlich wird der TV Abends genutzt, sprich wenn es dunkel ist. Allerdings ist mir die Bundesliga sehr wichtig und diese läuft nun mal im Hellen. Deswegen könnte es ggf. Probleme mit den Sonnenstrahlen und TV geben (siehe Anhang).

Ich hoffe ihr könnt mir die Entscheidung ob Plasma oder LCD etwas erleichtern und mir passende TVs im entsprechenden Preissegment vorschlagen.

Danke für die Hilfe.

MFG
Timo
 

Anhänge

  • Wohnzimmer.jpg
    Wohnzimmer.jpg
    120,8 KB · Aufrufe: 570
Zur reinen Technik:

Plasma ist Technik von gestern und ist heute nicht mehr zu empfehlen. Der Stromverbrauch liegt bei dieser Technik auch recht hoch.
 
~50 Zoll ist 46,47 oder 55 bei LCD ^^

Panasonic TX-L55ETW5 bzw Samsung UE46ES8000

Plasma:
Panasonic TX-P50VT50E

Wenn jetzt LCD und Plasma: Es wurde hier schon so oft diskutiert und erklärt. Dafür würde ich bitten etwas im Forum zu stöbern :)
 
@
Ich hab den zur Zeit in Verwendung: LG 42LM620S Cinema3D incl. Receiver(DVB-t, DVB-C & C2) und Einschub.
54Watt verbrauch! Der hat alles was zum 3D Genus brauchst incl. 1GB Netzanschluss.
 
TJa Computerbase

1x Alte Technik von gestern zum Einpacken am liebsten im Kleid eines p50vt50 .

Danke :evillol:


Aber LCD ist der vorgeschlagene Samsung ue46ES8000 ganz gut wenn du nicht unbedingt 55" brauchst haben willst.
 
Zuletzt bearbeitet:
Hallo

Ich besitze seit 6 Monaten einen Sharp Aquos LC - 60 LE 635 E.

Kann ich voll und ganz empfehlen.

Stromververbrauch ist gut und das Bild bei BR einfach super.

Hat ein mattes Display, spiegelt also nicht.

Dank der vielen Einstellmöglichkeiten, schliert das Bild auch nicht bei schnellen Bewegungen.

Und das Beste P/L Top.

viele Grüße Reyis
 
Man man man, dass geht ja fix hier.

@wertzuiop123:

Die Unterschiede, soweit ich Sie als Leihe in der TV-Branche beurteilen kann, sind mir schon bekannt. Vll. habe ich mich da etwas ungenau ausgedrückt, sorry.
Zudem habe ich mir genau diesen Plasma auch angeschaut, der gefällt mir auch sehr.

@DerKleine49:

Also der LG sieht wirklich nicht nur durch die Optik super aus. Hast du beim 3D auch dieses Clouding Problem an den Rändern?

AudiRS6+:

Hast du Erfahrungen mit diesem TV? Auch an dich die Frage, gibt es hier dieses Clouding Problem bei 3D?
 
computerbase107 schrieb:
Zur reinen Technik:

Plasma ist Technik von gestern und ist heute nicht mehr zu empfehlen. Der Stromverbrauch liegt bei dieser Technik auch recht hoch.

Wie kommst denn darauf???
Wenn man sich mit der Materie nicht auskennt, dann sollte man nicht gleich... egal.. Hast du Erfahrungen gemacht??

Gerade für eine Zielgruppe, wie der TE, der über einen TV gamen möchte, BD-anschauen und eventuell 3D haben möchte, ist so einer (Plasma) predistiniert.

Wenn man auf den Stromverbrauch sich nur bezieht, dann kann ich dir sagen, es sind Mehrkosten von etwa 20-30,- € im Jahr im gegensatz zu einem LED/LCD.

Dafür hat man viel natürlichere Farben, ertsklassiges 3D. Austattung astrein;

Um die Mehrkosten etwas im Zaun zu halten, kann man ggf. mehrere Steckerleisten mit Schalter im Haushalt einsetzten, Standby adee
 
@computerbase107: Okay, wenn Du es sagst wird es stimmen ;-)

Ich suche bis heute einen Vorteil von LED ich habe im Arbeitszimmer seit kurzen einen LED-TV Samsung und das Bild ist so grässlich im vergleich zu meinem Panaplasma im Wohnzimmer das ich diesen nur für Abends bissel TV gucken nutze ... nen Film könnte ich mir darauf nicht ansehen so mies ist das Bild aus MEINER sicht!

Ich kann dir diesen hier empfehlen: http://geizhals.de/752464 den haben sich die eltern meiner freundin vor kurzem erst gekauft, ich habe dazu geraten, und die sind voll zufrieden. Schönes Gerät!
 
Ich suche bis heute einen Vorteil von LED ich habe im Arbeitszimmer seit kurzen einen LED-TV Samsung und das Bild ist so grässlich im vergleich zu meinem Panaplasma im Wohnzimmer das ich diesen nur für Abends bissel TV gucken nutze

Naja so pauschal kannst du dies jetzt auch nicht sagen. Dafür hängt viel zu viel vom Preissegment beider Geräte, vom Modell und den Einstellungen am Gerät selber ab.

Mit dem Panasonic TX-P50VT50E macht der TE sicher nicht falsch, falls nicht andere Empfehlungen kommen ;)
 
@ eselwald
ich habe im Arbeitszimmer seit kurzen einen LED-TV Samsung und das Bild ist so grässlich im vergleich zu meinem Panaplasma im Wohnzimmer das ich diesen nur für Abends bissel TV gucken nutze
Einstellungen ändern!
Die Werkseinstellungen sind allerdings wirklich komplett daneben - allein schon die Panel-Helligkeit werksseitig auf max. - wer denkt sich sowas aus?

Mit den Fenstern an der Seite wird es tatsächlich schwer ein passendes Gerät zu finden! Plasma dürfte komplett rausfallen wegen zu geringer Helligkeit und Reflektionen bei den meisten Geräten!
Allerdings sieht es bei dem hier empfohlenen ES8090 ähnlich unschön aus, da der sehr stark reflektiert! Gut, er hat deutlich mehr Helligkeit, aber bei direkter Sonneneinstrahlung wird es eng!

Am besten schauen, ob Du was findest was Dir gefällt mit einer matten Oberfläche und kein Glas! Wird aber schwer........
 
Memo123 schrieb:
Wie kommst denn darauf???
Wenn man sich mit der Materie nicht auskennt, dann sollte man nicht gleich... egal.. Hast du Erfahrungen gemacht??

Gerade für eine Zielgruppe, wie der TE, der über einen TV gamen möchte, BD-anschauen und eventuell 3D haben möchte, ist so einer (Plasma) predistiniert.

Wenn man auf den Stromverbrauch sich nur bezieht, dann kann ich dir sagen, es sind Mehrkosten von etwa 20-30,- € im Jahr im gegensatz zu einem LED/LCD.

Dafür hat man viel natürlichere Farben, ertsklassiges 3D. Austattung astrein;

Um die Mehrkosten etwas im Zaun zu halten, kann man ggf. mehrere Steckerleisten mit Schalter im Haushalt einsetzten, Standby adee

Don't Feed the Troll!

Den gleichen Mist erzählt er doch in jedem Thread wenn es um LCD und Plasma geht.

@TE:
Ich würde ab 50 Zoll und aufwärts eher Plasma nehmen, zumindest wenn man das Flimmern nicht sieht. Was aber bestimmt auch wieder von Modell zu Modell unterschiedlich ist.
Plasma hat die natürlicheren Farben und den viel besseren Schwarzwert.
Sollte es allerdings zu hell sein im Zimmer (gerade bei direkter Sonneneinstrahlung) dann wäre evtl doch ein LED/LCD die bessere Wahl.
 
@timo2607

Persönliche Erfahrung nicht, aber vom Bild her in diversen Märkten mit Abstand am besten.

Ich stehe auch gerade vor einem TV Kauf in vergleichbaren Dimensionen.

Der Pana hat übrigends Local Dimming, damit "sollte" der Schwarzwert recht

homogen ausfallen.


P.S.
An die Plasma Jünger: Wenn ich mir anschaue, das ein Plasma in 50 bis 55 Zoll ca. 200 Watt braucht,
und ein LED ca. 90 Watt bei besserer Helligkeit, muss ich pers. nicht mehr überlegen
welche Technik "outdated" ist...

Ist aber nur meine per. Meinung.
 
Du suchst genau das was ich vor einem Monat gesucht habe. Ich habe nach langer Recherche einen Samsung PS60E6500 gekauft, er hat einfach das beste Preis-Leistungs-Verhältnis und sogar 60 Zoll.
Ausführliche und aussagekräftige Tests gibt es auf den gennanten Seiten.

Habe ihn nicht ausgiebig getestet, aber was ich bisher sagen kann ist folgendes:
+ super Bild, kein mir bekannter LCD kommt da ran. Sicher auch kein Full-LED-LCD (diese kosten immer etwa 1000€ mehr als Edge-LED-LCDs).
+ spielt selbst vieles ab, auch .mkv mit aktuellen Video-, Audio-Codecs und Untertiteln, die man wie am PC umschalten kann.
+ lässt sich als PC verwenden, Maus und Tastatur an, ins WLAN einlogen. Fertig. ... ist aber glaub ich nichts mehr besonderes.
+ 3D funktioniert wunderbar (ist aber glaube ich normal)

- unter gewissen Umständen brummt sein Netzteil hörbar. Ich bin aber sensilbel gegenüber, doch irgendwie stört es mich nie. Und ohne Ton schaut man selten fern.
- der Energieverbrauch ist natürlich hoch. Aber man sollte es ausrechnen: er verbraucht geschätzt 100-150W mehr als ein Edge-LED-LCD. Schaut man im Schnitt 3h am Tag fern, sind es 20-30€ jährlich mehr. Ein gleichklassiger LCD kostet aber mindestens 200€ mehr... wie lange behält man einen Fernseher? 5-6 Jahre. Effektiv ist der Preis im schlechtesten Fall gleich, das Bild ist jedoch wesentlich besser.

o Am Wochenende teste ich mal wie gut er sich zum Spielen eignet. Ich gehe aber davon aus, dass das Ergebnis positiv ausfallen wird, bisher wurden schnelle Bewegungen wie z.B. Fussbälle wunderbar dargestellt.



PS: Gute Einstellungen (fast alle TVs sehen mit der Werkeinstellung schlechter aus) gibt es übrigens hier.



AudiRS6+ schrieb:
Persönliche Erfahrung nicht, aber vom Bild her in diversen Märkten mit Abstand am besten.
In den Märkten sollte man nicht die Bildqualität beurteilen. Es ist unbekannt 1) in welcher Qualität Bildmaterial vorliegt, 2) mit welchem Gerät es abgespielt wird, 3) wie der Fernseher eingestellt wird (Werkeinstellungen sind oft stark verbesserungsfähig) und 4) wie die Lichtverhältnisse von den heimischen abweichen.

Panasonics sind aber schon spitze, kann man nur empfehlen. Sie kosten aber etwas mehr.

P.S.
An die Plasma Jünger: Wenn ich mir anschaue, das ein Plasma in 50 bis 55 Zoll ca. 200 Watt braucht,
und ein LED ca. 90 Watt bei besserer Helligkeit, muss ich pers. nicht mehr überlegen
welche Technik "outdated" ist...

Ist aber nur meine per. Meinung.
Kaufst du einen Fernseher um Energie zu sparen oder schöne Bilder zu sehen? Wenn du Energie sparen willst, kaufe gar keinen. Der Energieverbrauch sagt nichts über die Aktualität der Technologie, sondern über die Effektivität.
Den ersten LCD Bildschirm gab es 1968, den ersten Plasmabildschirm 1964. Plasmabildschirme sind also älter, aber noch nicht outdated. Das sind sie erst mit der Verbreitung von OLED-Bildschirmen, genauso outdated sind dann die LCD-Bildschirme.
 
Zuletzt bearbeitet:
mal generell zu dem Bild was die verschiedenen Geräte mit LCD und LED-Hintergrundbeleuchtung bzw. Plasma bringen - es ist schon lange nicht mehr der Fall, das die LED-Geräte ein schlechtes Bild haben - es ist nur aufwändiger es einzustellen, da man mehr Möglichkeiten hat!
Natürlich kann man LED-Geräte Bonbon-Farben einstellen - wer es denn mag - aber man muss nicht!

Und Plasma ist tatsächlich in der Anschaffung günstiger, aber man hat dafür eben einen höheren Stromverbrauch!
 
Nochmal danke für die ganzen hilfreichen Antworten.

Ich frage mich, wieso ab einer 50 Zoll Größe ein Plasma die "bessere" Wahl ist. Mir ist das Problem z.B. bei passiven 3D TVs bekannt (LED). Allerdings habe ich bisher noch nicht mitbekommen, dass auch das 2D Bild ab einer bestimmten Zollgröße "unscharf" wird.

Ich muss ganz ehrlich sagen, dass es mir der LG 42LM620S aktuell richtig angetan hat. Scheinbar soll der TV ja sehr sehr gut sein. Ein kleines Manko sind für mich die passiven 3D Brillen, die dabei sind.

Hat sonst noch jemand Erfahrungen mit diesem Gerät?
 
AudiRS6+ schrieb:
@timo2607

Persönliche Erfahrung nicht, aber vom Bild her in diversen Märkten mit Abstand am besten.

Ich stehe auch gerade vor einem TV Kauf in vergleichbaren Dimensionen.

Der Pana hat übrigends Local Dimming, damit "sollte" der Schwarzwert recht

homogen ausfallen.


P.S.
An die Plasma Jünger: Wenn ich mir anschaue, das ein Plasma in 50 bis 55 Zoll ca. 200 Watt braucht,
und ein LED ca. 90 Watt bei besserer Helligkeit, muss ich pers. nicht mehr überlegen
welche Technik "outdated" ist...

Ist aber nur meine per. Meinung.

du laberst genau den gleichen Mist nach.
Ein Plasma bringt viel schönere Bilder auf den Schirm. Sofern er denn gut ist, aber das ist bei LCD/LED ja nicht anders. Und an den Schwarzwert komm auch ein LCD mit Local Dimming nicht heran, weil beim Plasma jeder Pixel einzelnd gesteuert wird.

Du vergleicht hier also 2 völlig unterschiedliche Techniken die beide aktuell sind!

In dunkleren Räumen und bei großen Bilddiagonalen würde ich immer einen Plasma nehmen.

Der Stromverbrauch ist, wie Lumin sagt, kein Grund. ob ich nun pro monat 2 € mehr bezahle oder nicht, davon mache ich keinen TV-Kauf abhängig.
Das Geld kann man locker wieder durch andere energiesparmaßnahmen rein bekommen indem man nur Licht einschaltet wenns nötig ist oder aber einfach Steckdosenleisten verbaut.

@timo2607: Man nimmt dann lieber Plasma, weil die Ausleuchtung einfach irgendwann immer schwieriger wird.
Die Hintergrundbeleuchtung muss ja immer heller sein je größer der TV, bedeutet: man sieht auch viel eher Lichthöfe bei dunklen Szenen. Das kann bei Plasma eben nicht passieren.
Und was hast du gegen passives 3d?
Die Brillen sind angenehmer zu tragen, das Bild wird nicht so viel dunkler und die Technik ist fast dieselbe wie im Kino.
 
Zuletzt bearbeitet:
l_uk_e schrieb:
Der Stromverbrauch ist, wie Lumin sagt, kein Grund. ob ich nun pro monat 2 € mehr bezahle oder nicht, davon mache ich keinen TV-Kauf abhängig.
Das Geld kann man locker wieder durch andere energiesparmaßnahmen rein bekommen indem man nur Licht einschaltet wenns nötig ist oder aber einfach Steckdosenleisten verbaut.
Das Geld hat man schon am Anfang drin (mindestens), weil der Fernseher weniger kostet. ;)


Aktive Brillen sind nicht störend. Bei meinem Fernseher sind sie kaum größer als die passiven aus dem Kino. Habe mich selbst gewundert. Der Nasenbügel ist etwas höher gebaut, weil sich in ihm eine Knopfbatterie befindet, das ist alles.


@ l_uk_e: Die Technik ist glaube ich schon ziemlich unterschiedlich, ich nehme ohne es zu wissen an, es funktioniert folgendermaßen.
Im Kino werden zwei polarisierte Bilder nacheinander (oder zugleich?) gezeigt, deren Polarisierungsrichtung zueinander um 90° gedreht ist. Die Polfilter in der Brille lassen nur das passend gedrehte durch.
Die aktiven Brillen zuhause sind Shutterbrillen. Ein Auge ist abwechselnd versperrt, das andere offen. Der Fernseher zeigt abwechselnd ein Bild für ein Auge.
 
Zuletzt bearbeitet:
Zurück
Oben