Project-X
Commodore
- Registriert
- Okt. 2003
- Beiträge
- 5.015
Hallo Leute
Seit vielen Monaten breche ich mir meinen Kopf darüber, wegen der IP-Cams.
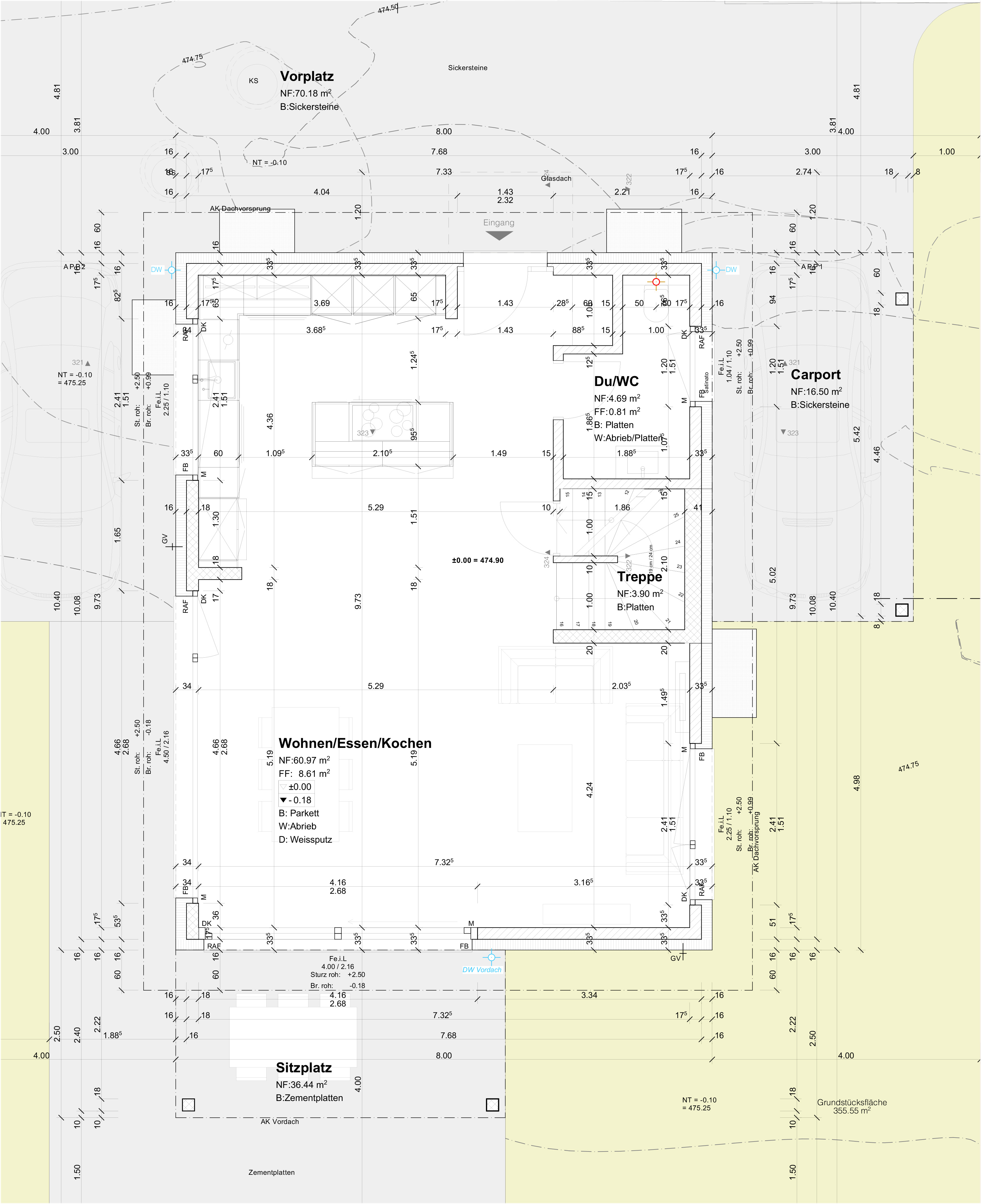
Mein Einfamilienhaus wird ab nächste Woche gebaut, natürlich vorerst nur den Aushub für den Keller und später mehr.
Ziel: Ich möchte gerne mein Haus von alle 4 Seiten überwachen können, vor allem den Ausblick auf dem Carport bzw. Parkplatz auf der anderen Seite (Sind total 2 Parkplätze neben dem Haus).
Ich bin mir nicht sicher, ob ich die IP-Cams welches über den Stromnetz laufen vertrauen soll, oder doch die Netzwerk Variante mit PoE? Auch über die Standorte der Kameras bin ich noch nicht im Klaren...
Kriterium:
Betreff Kosten, mein Budget liegt da zwischen 2000-3000€ für das Paket (ohne Montage).
Wenn dies noch etwas mehr kostet scheut es mich auch nicht, ich will hier gerne auf etwas Qualitatives setzen.
Aber natürlich bin ich auch nicht abgeneigt, wenn es weit weniger kostet. Muss nicht gleich 4K bei 120fps sein
Hat jemand einer Idee mit welchen Kameras (Set, Marken etc.) ich dies Realisieren kann?
Ich habe diesen Freitag einen zweiten Termin mit einer Elektrofirma, da muss ich wissen, ob ich da an der Aussenwand eine RJ45 (x4) oder Stromsteckdose (x4) benötige.
PS: Ich brauche hier keine Rechtserklärung, da ich nur mein Grundstück Filme und auch keine Frage nach „wozu“ Sicherheitskameras etc.
Seit vielen Monaten breche ich mir meinen Kopf darüber, wegen der IP-Cams.
Mein Einfamilienhaus wird ab nächste Woche gebaut, natürlich vorerst nur den Aushub für den Keller und später mehr.
Ziel: Ich möchte gerne mein Haus von alle 4 Seiten überwachen können, vor allem den Ausblick auf dem Carport bzw. Parkplatz auf der anderen Seite (Sind total 2 Parkplätze neben dem Haus).
Ich bin mir nicht sicher, ob ich die IP-Cams welches über den Stromnetz laufen vertrauen soll, oder doch die Netzwerk Variante mit PoE? Auch über die Standorte der Kameras bin ich noch nicht im Klaren...
Kriterium:
- KEIN Wireless! Will Kabelgebunden haben, da ich auch nicht alle paar Monate die Akkus tauschen will und habe auch keine Lust, auf Verbindungsprobleme.
- KEIN Abo Pflicht bzw. Monatliche Kosten. Will kein IP-Cams welches ich später jeden Monat etwas zahlen muss.
- Witterungsschutz z.B. gegen Regen, Schnee usw.
- Brauche insgesamt 6 Stück, 4 Aussen und zwei Innen.
Betreff Kosten, mein Budget liegt da zwischen 2000-3000€ für das Paket (ohne Montage).
Wenn dies noch etwas mehr kostet scheut es mich auch nicht, ich will hier gerne auf etwas Qualitatives setzen.
Aber natürlich bin ich auch nicht abgeneigt, wenn es weit weniger kostet. Muss nicht gleich 4K bei 120fps sein
Hat jemand einer Idee mit welchen Kameras (Set, Marken etc.) ich dies Realisieren kann?
Ich habe diesen Freitag einen zweiten Termin mit einer Elektrofirma, da muss ich wissen, ob ich da an der Aussenwand eine RJ45 (x4) oder Stromsteckdose (x4) benötige.
PS: Ich brauche hier keine Rechtserklärung, da ich nur mein Grundstück Filme und auch keine Frage nach „wozu“ Sicherheitskameras etc.
Anhänge
Zuletzt bearbeitet: