Bluemchen1717
Cadet 2nd Year
- Registriert
- Jan. 2018
- Beiträge
- 26
Hallo liebes Forum,
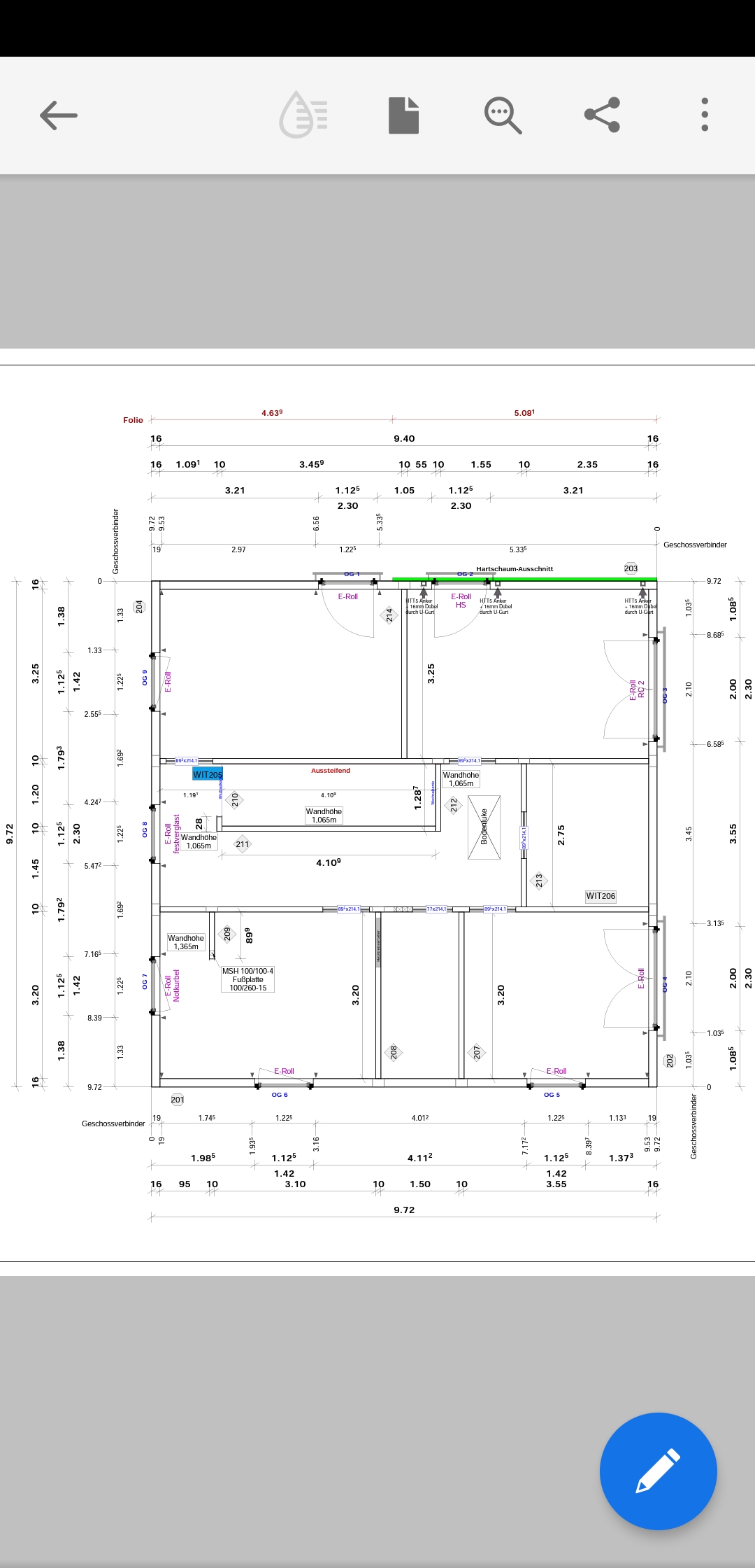
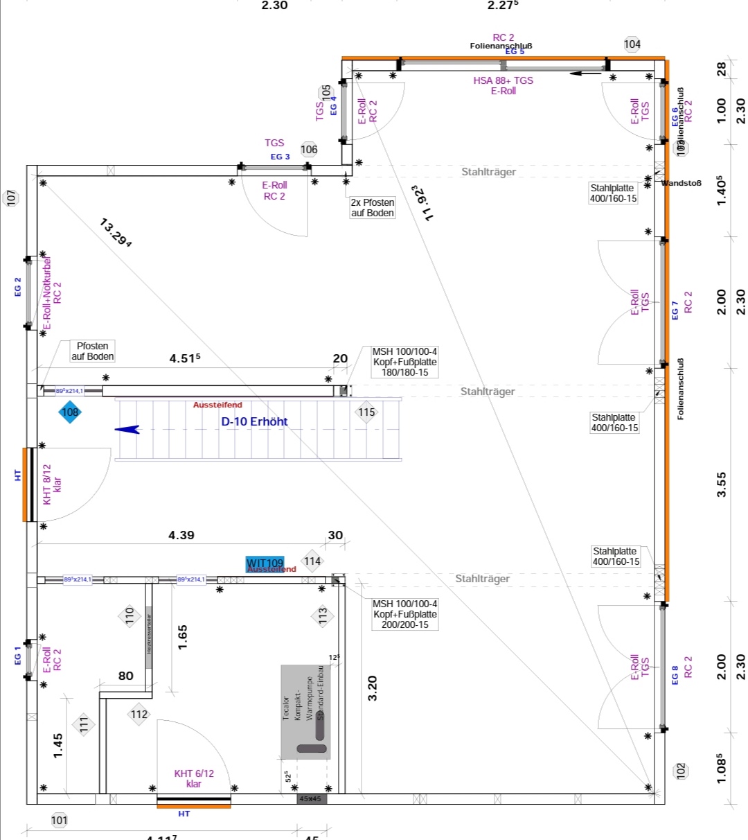
wir bauen gerade unser EFH als Ausbauhaus mit sehr viel Eigenleistung. Nun möchten wir auch die LAN-Verkabelung selbst machen.
Gibt es ein Programm oder habt ihr gute Tipps, wie wir die Kabel am besten verlegen?
Am besten wäre es vermutlich zu jeder LAN Dose ein eigenes Kabel zu ziehen, oder? Wie würdet ihr das mit den Kabeln zum OG machen? Ein Kabel zu einem Switch und von dort die Kabel verlegen, oder direkt 11 Kabel hochlegen?
Wir sind keine Profis nur gelernte Fachinformatiker aber wie auch bei allem anderem beim Hausbau freuen wir uns auf diesem Gebiet dazu lernen zu dürfen. Daher würden wir uns sehr über Tipps freuen!
Danke euch
wir bauen gerade unser EFH als Ausbauhaus mit sehr viel Eigenleistung. Nun möchten wir auch die LAN-Verkabelung selbst machen.
Gibt es ein Programm oder habt ihr gute Tipps, wie wir die Kabel am besten verlegen?
Am besten wäre es vermutlich zu jeder LAN Dose ein eigenes Kabel zu ziehen, oder? Wie würdet ihr das mit den Kabeln zum OG machen? Ein Kabel zu einem Switch und von dort die Kabel verlegen, oder direkt 11 Kabel hochlegen?
Wir sind keine Profis nur gelernte Fachinformatiker aber wie auch bei allem anderem beim Hausbau freuen wir uns auf diesem Gebiet dazu lernen zu dürfen. Daher würden wir uns sehr über Tipps freuen!
Danke euch



