Bluemchen1717
Cadet 2nd Year
- Registriert
- Jan. 2018
- Beiträge
- 26
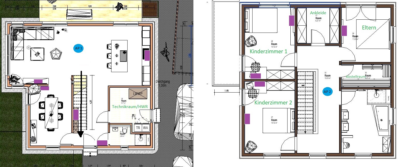
Hallo, wir planen gerade unser Einfamilienhaus.
Nun sind wir am überlegen, wo wie am besten die zwei Accesspoints an der Decke anbringen. Wir möchten natürlich gerne in jedem Raum gutes Wlan empfangen. Nun überlegen wir wo wir überall Lankabel benötigen. Doch bei der Platzierung der Acces Points sind wir uns bisher nur sicher, dass wir diese an den Decken möchten.
Es ist ein Haus in Holzständerbauweise und bekommen Glasfaser zum Haus.
Wir dachten an diesen AP:
" Ubiquiti Networks Wireless Access Point, 2.4GHz/5GHz, 867Mbit, 122m 1x 10/100/1000, 24V Passiv PoE, UAP-AC-LITE (1x 10/100/1000, 24V Passiv PoE 160 x 31.45 mm Indoor)"
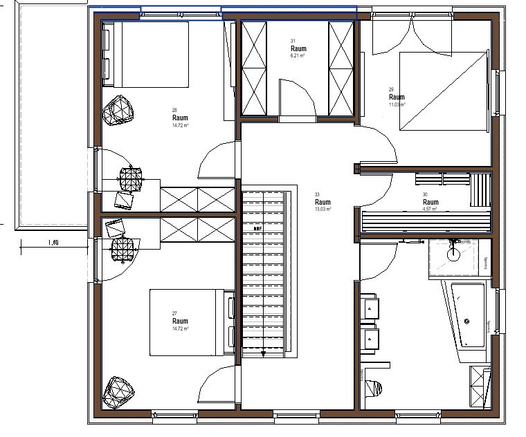
Wo würdet ihr für die Elektro/Netzwerkplanung die APs setzen um optimalen Empfang zu erhalten?
Danke euch!


Nun sind wir am überlegen, wo wie am besten die zwei Accesspoints an der Decke anbringen. Wir möchten natürlich gerne in jedem Raum gutes Wlan empfangen. Nun überlegen wir wo wir überall Lankabel benötigen. Doch bei der Platzierung der Acces Points sind wir uns bisher nur sicher, dass wir diese an den Decken möchten.
Es ist ein Haus in Holzständerbauweise und bekommen Glasfaser zum Haus.
Wir dachten an diesen AP:
" Ubiquiti Networks Wireless Access Point, 2.4GHz/5GHz, 867Mbit, 122m 1x 10/100/1000, 24V Passiv PoE, UAP-AC-LITE (1x 10/100/1000, 24V Passiv PoE 160 x 31.45 mm Indoor)"
Wo würdet ihr für die Elektro/Netzwerkplanung die APs setzen um optimalen Empfang zu erhalten?
Danke euch!


Zuletzt bearbeitet:
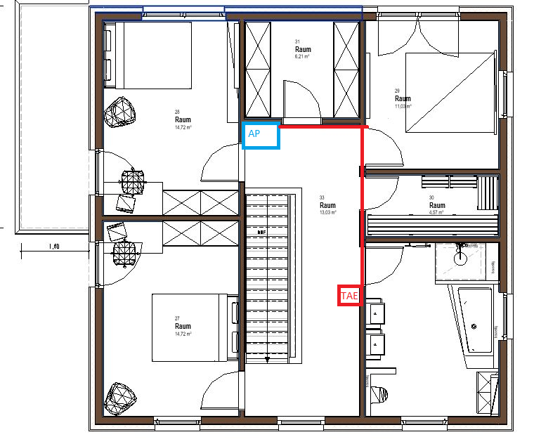
(falsches Bild)
