Netzwerk wie am besten aufbauen

Benjiberlin

Lt. Junior Grade
Registriert
Okt. 2010
Beiträge
447
Hallo an die Community,


Wir haben derzeit ein Hausprojekt am laufen, haben schon viel geschafft und sind jetzt bei der Elektrik ankommen. Das heißt wir beginnen damit die Kabel durch das Haus zu ziehen. Nun wollte ich mir von der Profi Community, - Tipps und Tricks einholen - Ideen sind auch gerne gesehen.

Ich würde schon sagen das ich viel Erfahrung und Wissen was PC und Technik angeht besitze, aber in Sachen Netzwerke fehlt es bei mir ein wenig.

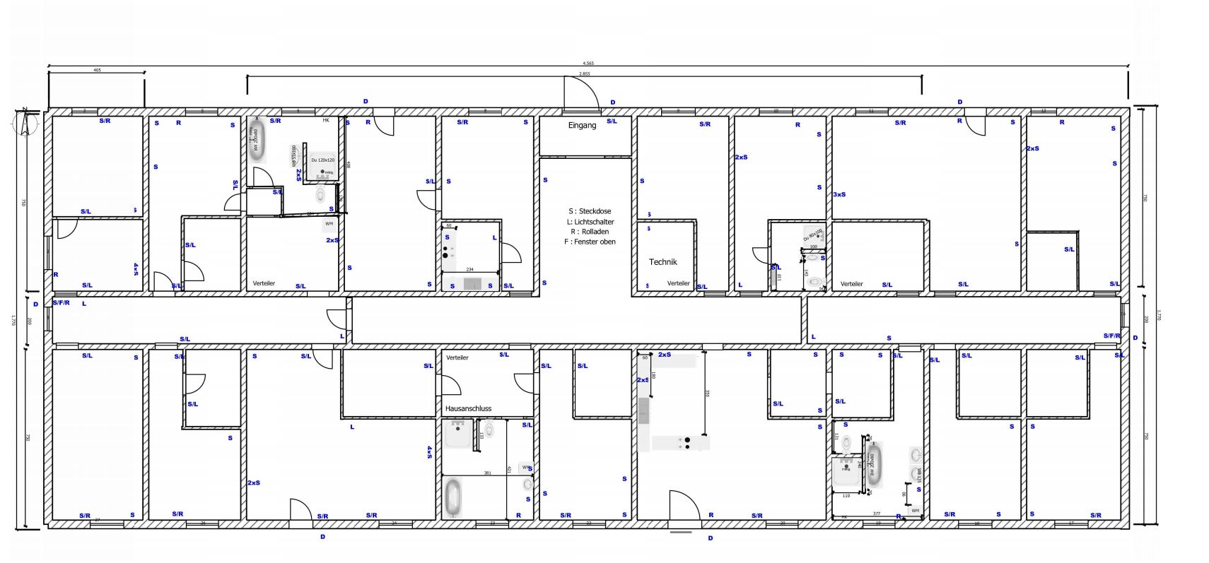
Ich habe einen Grundriss des Hauses mit angehangen sowie entsprechender Legende.

Es ist nur eine TA/E Dose vorhanden von der müsste dann alles abgehen. Das heißt Modem und dann Switch?

Über Wlan möchten wir nicht das ganze Haus befeuern, dafür sind auch die Wände teilweise zu dick.

An diesem Wohnort sind über Vodafone und der Telekom 100 M'bits verfügbar.


Nun ist die Frage wie fangen wir am besten die Netzverteilung an.


Die Dose wo der Router ran kommt ist direkt in der Mitte des Hauses ( auf dem Plan – Hausanschluß ) von dort aus muss alles was das Netzwerk betrifft verteilt werden.


Welchen Router würdet ihr für dieses Projekt vorschlagen? Welchen Switch? Welche Kabel? Welche Möglichkeiten gibt es.


Es müssen übers Internet mehrere Fernseher (Netflix,Amazon etc), Pc's, Hauskameras, Playstation etc befeuert werden.

TV Programm gibt es über eine Satelliten Anlage.



Ich freue mich über Kommentare und probiere zeitnah auf Fragen zu antworten.
 

Anhänge

  • Haus.JPG
    Haus.JPG
    168,9 KB · Aufrufe: 505
Sieht aus wie eine WG. Grausiger Schnitt. Egal.

Eine 200er Weitspann-Trasse der Länge nach einziehen, von dort in jedes Zimmer mindestens zwei Twinax legen. Bist Du schon bei 2x24er switches und Patchfeldern.
 
  • Gefällt mir
Reaktionen: [ACE].:SHARK:., Benjiberlin, hanse987 und eine weitere Person
Also ich würde als erstes gucken in welchem Raum sich Was und wie viele Geräte befinden.

Dann würde ich entscheiden wie man am besten an das Thema ran geht.

Wollt ihr komplett auf W-Lan verzichten? Hat denn überhaupt jedes Endgerät eine Lan Buchse?

Also ich würde sofern machbar versuchen, in jeden notwendigen Raum ein Netzwerkkabel von eurem Modem aus zu legen. In den jeweiligen Räumen angekommen würde dann entweder ein Wlan Router oder ein einfacher Switch verwendung finden. Je nachdem wie viele Räume es sind müsste bereits bei dem Modem ein kleiner (8 Port z.B.) Switch aufgestellt werden.

Was ist den das Budget für das ganze Projekt?

Was gerne bei so etwas empfohlen wird, wäre Ubiquiti:
https://www.ui.com/
 
  • Gefällt mir
Reaktionen: Benjiberlin
Optimal wäre, wenn es einen zentralen Ort gibt (z.B. der Technik Raum), an dem die Kabel aller Zimmer zusammenlaufen. D.h. an diesem Ort steht ein dicker Switch, von dem aus in jedes Zimmer 2-4 Kabel (je nach Bedarf) gehen. Lieber ein unbenutztes Kabel zu viel legen, als eins zu wenig. Die Kabel sind das billigste an der Netzwerk Infrastruktur.
Diese zentrale Stelle muss nicht direkt am Hauptanschluss sein. Es reicht wenn ein Kabel vom Hauptanschluss dort ebenfalls ankommt.

Auch im Bad würde ich heutzutage ein Netzwerkkabel verlegen, wenn man auf WLAN verzichten will. Und sei es nur, damit man auf seinem Smart Mirror die Wettervorhersage sehen kann.
Spätestens beim Thema Heimautomatisierung ist man dann froh, wenn man in jeder Ecke des Hauses einen Netzwerkanschluss hat.
 
  • Gefällt mir
Reaktionen: Benjiberlin und snaxilian
Prisoner.o.Time schrieb:
empfohlen wird, wäre Ubiquiti
Das waren doch die Pfeifen, die einen massiven Datenverlust erst leugneten und nachdem das irgendwann nicht mehr ging es versuchten klein zu reden, oder?
Das waren auch die, die anfingen bei ihren neueren Geräten im Webinterface zur Konfiguration gleich Werbung einzuspielen, oder? Wo man auch nen Cloud-Account-Zwang hat und deren Geräte trotzdem weiterhin Daten zum Hersteller senden wenn man die Einstellung deaktiviert hat, oder?
Haben mal echt gute Geräte zu nem super Preis angeboten aber in den letzten Monaten haben sie echt sehr viele Karmapunkte verbraucht...

Benjiberlin schrieb:
Erfahrung und Wissen was PC und Technik
PC zusammen klöppeln und Windows installieren ist das eine^^
  • Bei Wohnräumen mindestens in zwei ggü. liegende Ecken der Räume eine Doppeldose setzen, das sollte dein Minimum sein
  • Bei Räumen wo jetzt schon kabelgebundene Geräte vorhanden sind, nimmst du Anzahl der Geräte + mind. noch eine Doppeldose als Reverse und packst das jeweils in ggü.-liegende Ecken denn früher oder später wird man mal umräumen und Möbel anders stellen wollen und dann willst du nicht nur von einer Stelle im Raum aus alle Kabel legen.
  • Alle Kabel aus den Räumen sollten an einer Stelle auf einem bzw. mehrere Patchpanel enden. Wenn du selbst auflegen willst, nimm Keystone Module und danke uns später.
  • Zum Switch: Bisher hast du keine wirklichen Anforderungen genannt anhand derer man etwas empfehlen könnte. @Twostone kommt schon auf 2x 24er Switche (günstiger aber ggf. Flaschenhals zwischen den Switchen je nach gewählten Modellen) oder einen 48er Switch (teuer aber keine Engstelle).
  • Zum Switch II: Du brauchst nicht direkt den Vollausbau aber wenn du alle jetzt vorhanden Geräte anschließen willst solltest du noch etwas Puffer haben am Switch. Hast du 15 Geräte inkl. Router würde ich eher zum 24er Switch greifen, es kommen ja doch schnell genug die nächsten Geräte hinzu oder weitere Access Points usw. usf.
  • Router: Auch hier fehlen konkrete Anforderungen. Bisher lese ich nix, was nicht auch ne bessere Fritzbox erledigen kann.
 
  • Gefällt mir
Reaktionen: [ACE].:SHARK:. und Benjiberlin
Im Idealfall würde ich damit eine Firma beauftragen. Da spart man sonst am falschen Ende.

Ansonsten empfiehlt es sich mindestens eine Doppel-Dose pro Zimmer zu haben. Wo mehr Geräte stehen sicherlich auch mehr. Wenn möglich mit Leerrohren arbeiten, dann bist du später flexibel. Da ja ein Raum für Technik vorhanden ist, würde ich mir dort einen kleinen Netzwerkschrank (19" 9HE bspw.) hinstellen für Patchfeld(er) und Switch/Router.

Ich arbeite als Admin in einer Verwaltung und bin auch bei der Beauftragung solcher Arbeiten dabei, kann dir also zur letztendlichen Umsetzung weniger sagen, da ich da kaum Erfahrung mit habe. Ich administriere später das Netzwerk. Ich weiß aber, dass bei der Anzahl der Räume schon gut was zu tun wäre und würde persönlich die Finger davon lassen.

Wenn das Geld für eine Firma absolut nicht da ist, würde ich doch wieder eher in Richtung WLAN gehen. Das wird wahrscheinlich wirklich nichts mit einer Fritzbox in der Mitte des Hauses, da kann ich dir wohl Recht geben, aber wenn du in bestimmte Räume ein paar Dosen legst für die wichtigsten Endgeräte und Accespoints verlegst, wird die Sache vom handwerklichen Aspekt schonmal einfacher würde ich sagen.

Was Empfehlung bzgl. Router und Switch angeht. Das hängt dann im Grunde von gänzlich anderen Faktoren ab. Diesen Geräten ist die Verkabelung ja Schnuppe.

Anzahl der Endgeräte?
Netzwerksegmentierung gewünscht?
PoE benötigt?
etc.
 
  • Gefällt mir
Reaktionen: Benjiberlin
Wie ist denn die Nutzung des Hauses? Alles eine Familie oder mehrere kleine Einheite die zusammen unter einem Dach wohnen? Es geht darum ob man die Netzwerke untereinander trennen soll bzw. muss. Mit fremden Leuten würde ich nie mein Netzwerk teilen.
 
  • Gefällt mir
Reaktionen: Benjiberlin
Poati schrieb:
kann dir also zur letztendlichen Umsetzung weniger sagen
Ich setze solche Sachen in industrieller Umgebung hin und wieder um, auf Kundenseite. Daher eben auch meine Empfehlung mit zentraler Trassenführung. Sieht vielleicht in einem Wohnhaus nicht schön aus, kann man aber ggf. unter einer abgehängten Decke verschwinden lassen. Ist für spätere Erweiterung schon ganz praktisch, wenn man zusätzliche Leitungen bloß reinwerfen braucht statt sie mühselig durch fast überfüllte Rohre zwängen zu müssen.
 
  • Gefällt mir
Reaktionen: snaxilian und Benjiberlin
@Twostone
Ja praktisch ist so ne Trasse auf jeden Fall. Wenn sich der TE das Auflegen aller Kabel auch zu traut, kann man es bestimmt irgendwie über die Bühne bringen. Ist halt die Frage, ob das für ein paar Kabel notwendig ist, wenn man doch noch mit 2-3 APs arbeitet. Macht die Sache auch einfacher. Wenn alle möglichen Räume Netzwerkanschlüsse müssen, fände ich deinen Vorschlag aber definitiv gut. Auf jeden Fall praktikabel :D
 
  • Gefällt mir
Reaktionen: Benjiberlin
Wow soviele Antworten und das um die Uhrzeit! Ich danke euch schonmal und werde heute nach der Arbeit auf alle Fragen eingehen!
Danke an jeden schonmal.
PS.: Es ist ein Wohnhaus mit drei Familien, das heißt es sollte schon getrennt werden, aber alle beziehen das Internet von einer Zentralen Einheit aus.
 
Der Grundriss wirft mehr Fragen auf als das er beantwortet :confused_alt: Räume ohne Türen sind immer merkwürdig :evillol:.

Spielt aber bei den Grundlegenden Tipps aber auch keine große Rolle.
  • Wie schon geschrieben 1 Zentraler Punkt wäre der Idealfall.
  • Zentral auf Patchpanel aufgelegt (bei größerer Anzahl ist ein Netzwerkschrank nie verkehrt) an den Geräten Netzwerkdosen.
  • Standart bei der Verkabellung ist Cat7 Verlegekabel. In der Regel duplex selbst wenn nur ein Anschluss gebraucht wird. Reserve schadet nie.
  • Verlegung im Idealfall so das die Kabel auch auf lange Sicht austauschbar bleiben (Rohre etc.) Wer weiß ob in 10-20 Jahren Cat 7 noch aktuell ist.
  • Würde schauen das in jedem Raum ein ungenutzter Anschluss übrig ist, damit man notfals mit vielen kleinen Accespoints immer noch nachrüsten kann.
  • Überlegen was sonst noch mit eingebunden werden könnte. z.B. Zähleranlage (oftmals schon vom Netzbetreiber gefordert, vorbereitung Smart Meter) Telefon (kabelgebunden/dect), Türsprechstelle, WLAN Außenbereich, Garage Ladesäule, Smarter Kühlschrank/Waschmaschine etc....
 
Zuletzt bearbeitet:
Hi...

Benjiberlin schrieb:
[...] aber alle beziehen das Internet von einer Zentralen Einheit aus.
Heißt, ein Anschluß (mit entsprechendem Tarif) wird für alle abnehmenden Parteien "aufgeteilt"?

Beim 'nem 100MBit/s-Anschluß kann als Router selbst ein/e (relativ aktuelle/r) FritzBox/SpeedPort Smart, o. ä. die "Hausversorgung" locker leisten - da müssen keine exotischen Geräte (mit meistens schwieriger Handhabung) für angeschafft werden.
Ob aber für alle angedachten Abnehmer eine 100er-Leitung ausreicht?

Unabdingbare Frage ist dann auch, wie die weitere Versorgung (LAN/WLAN) innerhalb der Parteien benötigt wird.
Grundsätzlich gilt: Es geht nix über kabelgebundene (LAN)Anbindung!
WLAN ist dagegen "nur" eine Ausweichmöglichkeit zur Versorgung - durch die heutig verfügbare Technik allerdings schon merklich angenähert.

Also,...Router für den I-net-Zugang verbunden mit einem GBit-Switch, der über mind. Cat. 6a/7-Inst.-kabel mit den jeweiligen "Abnehmer"-zugängen (Netzwerkdosen, z. B. AP/UP) verbunden ist.
Dann innerhalb der Parteien je nach Bedarf weiter mit LAN/WLAN-Versorgungsgeräten (evtl. PoE-fähig) - da käme's dann auf benötigten stationären (LAN) oder mobilen (WLAN) Zugänge an.

Und...es ist absoluter Quatsch, im Hinblick auf zukünftig (in vllt. zwanzig, dreißig Jahren) mögliche Versorgungsbelange (z. B. wg. SmartHome, etc.) auch gleich noch drei, vier, fünf Cat. 9/10/11-Kabel zusätzlich zu verlegen - wer so viel SmartHome usw. haben möchte, kauft sich sein Eigenheim (auf dem Mond - sorry, Ironie!) und gestaltet es entsprechend - lasst einfach mal praktisch Notwendiges für die aktuelle Nutzungssituation für sich sprechen!

Da solcherlei Installationen durchaus handwerkliches Geschick und entsprechende Fachkenntnisse erfordern, sollte vllt. auch aus Haftungsgründen die Beauftragung eines kompetenten Fachbetriebes in Betracht gezogen werden - oder ist entsprechend fachkompetentes Personal zur Selbstinstallation verfügbar?


Btw:
Twostone schrieb:
Eine 200er Weitspann-Trasse der Länge nach einziehen, von dort in jedes Zimmer mindestens zwei Twinax legen.
So recht Du hast, aber welcher TE mit den getätigten Fragestellungen soll mit diesem Fachchinesisch was anfangen können?
 
Läßt es der Internetprovider überhaupt in seinen Vertragsbedingungen zu, das sich 3 Familien/Haushalte einen Internetanschluß teilen ? Und wie sollen die Kosten dafür abgerechnet werden ? Wenn sich z.B. herausstellt das es in einer Familie mehrere Poweruser gibt, in den anderen Familien das Internet eher durchschnittlich genutzt wird ? Deswegen sollte man am Zentralen Punkt auch die Möglichkeit mehrerer getrennter Internetzugänge vorsehen.
Und man sollte auch die Zahl benötigten LAN-Anschlüsse nicht unterschätzen. Neben den von @VirusA87 schon genannten Geräten eventuell auch noch TV per IP-TV und/oder SAT-IP.
 
User007 schrieb:
So recht Du hast, aber welcher TE mit den getätigten Fragestellungen soll mit diesem Fachchinesisch was anfangen können?

Ich würde ja auf Google setzen, aber das hält jeder anders. Und bei dem merkwürdigen Grundriss würde ich neben der technischen Frage auch über den Architekten prüfen lassen, ob Brandschutz ein Thema sein könnte.
 
  • Gefällt mir
Reaktionen: VirusA87 und snaxilian
Joe Dalton schrieb:
Ich würde ja auf Google setzen
Das ganze ist nur so sehr Fachchinesich das da selbst google nix bringt. "Twinax" dürfte sogar eher ein lokal gebräuchliche Bezeichnung sein, weil die mir selbst nichts sagt und ich googeln musste. Ich bezweifle das er weder die alten IBM Stecker, noch die Fertigkabel für den SFP Port meint.

Brandschutz könnte aber tatsächlich noch eine Rolle spielen da es in den Bereich Mehrfamilienhaus geht. Das Thema sollte man dann auch einem Fachmann überlasen, wozu ich nicht jeden Architekten zählen würde :evillol:. Damit könnte auch ein Zentraler Punkt pro Einheit leichter zu realisieren sein als ein Zentraler Punkt für alle.

User007 schrieb:
Und...es ist absoluter Quatsch, im Hinblick auf zukünftig (in vllt. zwanzig, dreißig Jahren) mögliche Versorgungsbelange (z. B. wg. SmartHome, etc.) auch gleich noch drei, vier, fünf Cat. 9/10/11-Kabel zusätzlich zu verlegen
Da meine Punkte sicher auch in die Richtung verstanden werden könnten, muss ich noch ergänzen das dies natürlich richtig ist.

Alles kann man sowieso nicht vorbereiten, bzw. wenn wird das schon sehr teuer. Man kann in einem 1 Familienhaus auch über 1km Duplex versenken.
Gedanken sollte man sich darüber aber machen, ob man so etwas grundsätzlich will.

So Sachen wie Türsprechstelle, Telefon werden oftmals von den Leuten einfach vergessen da sie keinen direkten Zusammenhang sehen. Man kann aber auch mit einer einfachen Türklingel glücklich werden und viele nutzen sowieso nur ihr Handy.
Zähleranlage wissen viele Leute einfach nicht (woher auch) und Ladesäule (wenn Garage/Stellplatz überhaupt eine Rolle spielt) sollte man zumindest die Option zum Nachrüstbarkeit (z.B. Leerrohr) in Betracht ziehen (sowohl Strom als auch Netzwerk), man muss ja keine Schnellladestation vorbereiten.
Smarter Kühlschrank / Waschmaschine halte ich selbst auch eher für unnütze Spielerei, aber wem´s gefällt warum nicht.

Eine Reserve Anschluss pro Raum (natürlich nicht jede Abstellkammer und Bäder) für WLAN würde ich eher als nötig erachten. Es gibt heutzutage schon zu viele Geräte die nur über WLAN betrieben werden. Aber da reicht ja z.B. ein Duplex am TV oder PC/Telefon, wo ein Anschluss noch frei ist (außer jeder TV hat eine Playstation :rolleyes: ) um die Option zu haben in dem Bereich einen Access Point zu betreiben. Da würde ich den Mehraufwand klein halten.

Die Austauschbarkeit ist eher der Idealfall, vieles ist nicht austauschbar obwohl z.b. Lehrrohre verwendet wurden, weil die Biegeradien zu eng sind etc..
Je nachdem auf welcher Grundlage man baut kann sowas auch gefordert sein. Was aber beim Selbermachen kein Thema sein dürfte (ist eher ein Stolperstein bei Auftragsvergabe), da darf der TE entscheiden, ob er sowas mitbedenkt bzw. der Aufwand wert ist. Je nach Situation kann das mehr oder weniger einfach umzusetzen sein
 
Zuletzt bearbeitet:
  • Gefällt mir
Reaktionen: Punctum Maximum
Da sich alle Anwohner den Anschluss teilen, würde ich wie folgt vorgehen:

Ein ‚managed‘ Router, z.B. MikroTik und drei Subnetze aufspannen. Warum nicht nur die FRITZ!Box?
Wenn eine Person was runter lädt, schauen alle anderen in die Röhre. Ich würde im z.B. MikroTik Queues anlegen, die mindestens 33Mbit/s für jedes Subnet garantieren. Sollte mehr zur Verfügung stehen auch mehr, aber das Drittel sollte für jeden, bei Bedarf, das Minimum sein.

AccessPoints würde ich jeweils mittig in die Wohneinheit setzen, dann sollte das auch ‚reichen‘. In die Zimmer jeweils Minimum eine Doppeldose.
 
VirusA87 schrieb:
außer jeder TV hat eine Playstation :rolleyes:
Und, und, und, .... ;)

Gerade am TV würde ich sagen: Ein Kabel reicht (und meinetwegen noch eins als Reserve), weil hier die Anzahl der Geräte unkontrollierbar ist, aber gleichzeitig auch die Bandbreite vollkommen egal ist - solange grob 250 MBit/s ankommen. Die 250 habe ich mir aus den Fingern gesaugt, damit man einen hochauflösenden Film über's lokale Netzwerk streamen kann und gleichzeitig ein Gerät schnell seine Software Updates herunterladen kann.

Ich kenne Leute, bei denen sieht's rund um den TV so aus: Ethernet für den TV, für die PlayStation, für die XBox, für die Switch, für den AppleTV, und für den AVR. Wer sowas betreibt, soll sich einfach einen 8-Port-Switch dazu kaufen. Es macht an dieser Stelle keinen Performance Unterschied, weil man nur eine Sache gleichzeitig am TV konsumieren kann. (Und allein 24 Ports im Technikraum einzusparen, dürfte deutlich im Geldbeutel spürbar sein)
 
  • Gefällt mir
Reaktionen: bender_
VirusA87 schrieb:
Ich bezweifle das er weder die alten IBM Stecker, noch die Fertigkabel für den SFP Port meint.
Es wird auch gerne als "Duplex-Kabel" bezeichnet. Letztlich nichts anderes als 2x2x4. Duplex ist auch eine falsche Bezeichnung. "Zwillingsleitung" trifft's da eher.
 
Hallo,

wow das sind wirklich viele ausführliche Antworten, die echt gute Vorschläge und auch Ideen beinhalten. Danke dafür an jeden der sich die Zeit genommen hat!

Ich glaube ich muss mich dann gleich mal an die teilweise vielen "Fachinformationen" setzen, google fragen und gucken inwieweit das auf mich zutreffen kann.

Also generell hat das Haus natürlich Türen :D Eine Eingangstür und jeweile eine Tür in der mitte des Ganges zur jeweiligen Wohneinheit. Nur die Wohneinheit in der Mitte hat nur die Wohneingangstür.

Was defintiv ein guter Einwand ist, dass man für jede Wohneinheit eine "Mindestgeschwindigkeit" einstellen sollte, sodass nicht die eine Einheit den gesamten "Speed" nimmt.
Wir haben auch Cat7 Duplexkabel ins Auge gefasst und wollen diese verlegen.
Eigentlich soll auch für eine eventuelle Elektrosäule ein Leerrohr verlegt werden, dort hatte ich selber gar nicht an ein Lan kabel gedacht, aber wird dann auch mit rein gelegt.
Ein Serverschrank ist auch geplant welcher im Technikraum steht und von dort aus dann die Sachen verteilt.
Gerade im Schlafzimmer reicht meiner Meinung auch ein Duplexanschluß den man dann zu Not ja wirklich mit einem Switch teilen kann um eventuelle PS, TV, Notebook etc befeuern kann.
Inwieweit sinkt die Geschwindigkeit wenn man an die Landosen dann nochmals einen Switch hängt?
Für Smart Home Geräte wie Waschmaschine etc reicht ja theoretisch Wlan welcher über einen Access Point geht?
Viele schreiben hier das sie die Kabel in Rohre verlegen würden um diese austauschen zu können. Bei uns kommen die Kabel in die Zwischendecke?!

Was ich allerdings wirklich merke das es sehr umfangreich wird und sicherlich auch anspruchsvoll. Mal gucken ob ich das alleine schaffe oder mir doch eine Firma nehme, was allerdings Kostenintensiver ist.
 
Das Problem ist, dass es relativ schwierig wird eine solche Lernkurve im Bereich Netzwerktechnik hinzulegen, dass sicher gestellt ist, dass man nicht wegen irgendwelcher kleinen Fehler in ein paar Monaten die Wände wieder aufklopfen muss.
Vielleicht ist es dann doch besser, wenn du mal im Bekanntenkreis guckst, ob da vielleicht irgendeine Elektriker oder ITSE vorhanden ist.

Donnidonis schrieb:
Da sich alle Anwohner den Anschluss teilen, würde ich wie folgt vorgehen:

Ein ‚managed‘ Router, z.B. MikroTik und drei Subnetze aufspannen.
Solange man sich auch wirklich komplett vertraut. Denn die Subnetze mögen isoliert sein, der Admin des einen Routers hat trotzdem vollen Zugriff.
Am einfachsten wäre es, wenn man man drei separate (WLAN-)Router für je eine Wohneinheit über den WAN-Port an den Modem-Router anschließt. Dann ist über das erneute NATing jede Wohneinheit definitiv isoliert.
 
Zurück
Oben