Am Verzweifeln mit Mesh/FritzBox/WLAN

Danke erneut für euer Feedback! :-)

Ich gebe zu, ich habe nicht alles verstanden (glaube ich). Wenn USB und HDMI nicht zu crimpen geht, dann muss ich ja ohnehin größere Löcher bohren.

Tendenziell würde das Durchlegen von Kabeln wohl reichen, weil die drei bis vier Anschlüsse (2x PC + ggf. 1x FireTV im Schlafzimmer + ggf. Fernseher im Wohnzimmer) ohnehin fix sind und das Montieren von Buchsen mir eigentlich nur als Mehraufwand erscheint. (Belehrt mich eines Besseren, wenn ich da was falsch verstanden habe!)

Ansonsten wohne ich zur Miete. Das heißt, das alles muss nicht für die Ewigkeit sein. Daher auch der Gedanke, auf Buchsen zu verzichten. Ein verlegtes Kabel wird bis zum Auszug nicht mehr verändert werden...
 
jtkrk schrieb:
Jemand Ideen/Empfehlungen/Ratschläge?
Hm, kannst du evtl. solche Signalübertrager benutzen? Beispiel.. kenne mich damit nicht aus...
Oder sowas hier, USB/HDMI über LAN.
Gibts auch kabellos..
Suche mal nach Wireless USB und/oder Wireless HDMI...

Kostet natürlich was, da kommst du mit langen Kabeln und größen Löchern wohl günstiger.

Durch wieviele Wände musst du und welcher Art sind die Wände?

jtkrk schrieb:
Dann wiederum wäre ich auf der Suche nach einer Art "Gummimuffe", durch die ich die Kabel ziehen kann und die dann die Löcher "abdichtet". Am besten in Weiß.
Ich kenne das nur für Außenwände, mit Vergussmasse und so ... Für Innenwände kenne ich da nichts ..

Schau mal das, scheint aus USA und sieht aus, wie aus dem 3D-Drucker.
Sowas ist eher für den Schreibtisch ...
Das ist für Unterputzdosen.
Das hier wäre flexibel, aber ggfs. etwas klein, da musst du die Stecker messen.

jtkrk schrieb:
Da frage ich mich auch, ob man HDMI und USB als Verlegekabel bekommt und die Stecker nachträglich montieren kann.
Für HDMI gibts Crimpstecker (Zange aber teuer) oder sowas hier zum Schrauben...
USB würde ich fertig nehmen, ggfs. USB-C oder MicroUSB
 
Vielen Dank für die vielen Links und Hilfen! Habe daraus eine Auswahl gefunden! :)

Der Umzug und die damit verbundenen Arbeiten haben sich leider etwas gezogen, daher erst jetzt die Rückmeldung und eine letzte Frage.

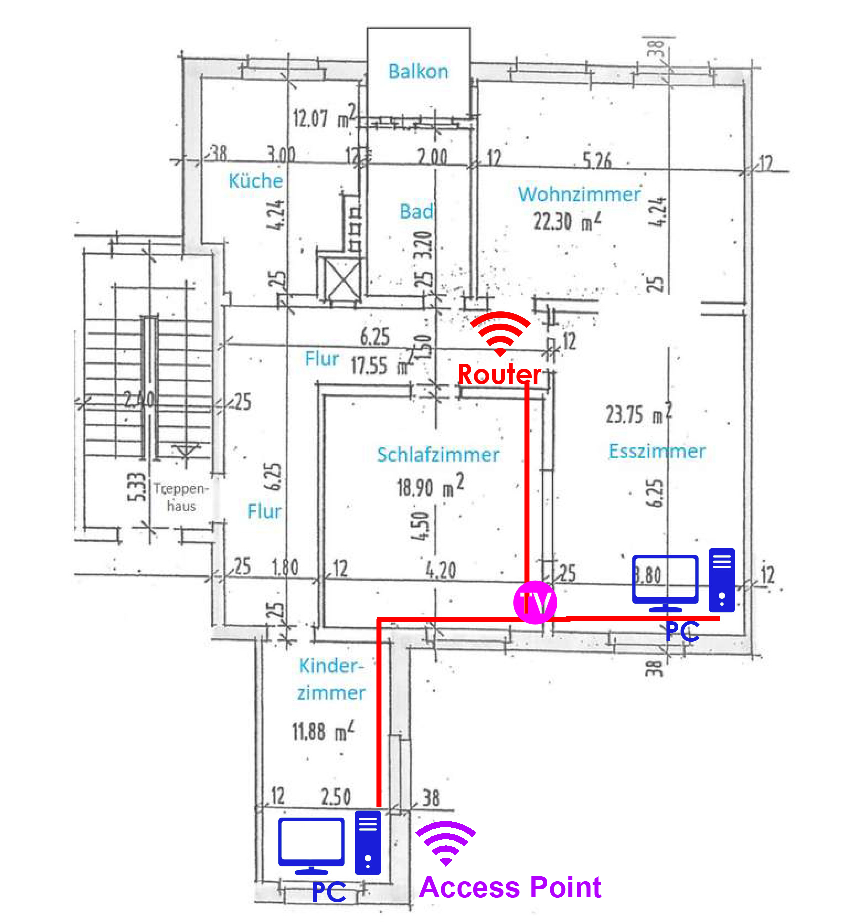
Ich habe mich jetzt für folgende kabelgebundene Verteilung + Position des Routers entschieden. Darüber hinaus ist mir jedoch aufgefallen, dass ich ganz ohne WLAN im Arbeitszimmer (= Kinderzimmer, unten) nicht auskomme. Heißt, ich benötige zusätzlich einen Access Point im Arbeitszimmer (siehe Skizze). Der Plan ist, dass ich diesen mit einem Kabel verbinde, sodass ich WLAN im unteren Bereich der Wohnung habe. Darüber hinaus möchte ich den PC dann direkt per LAN-Kabel mit dem Access Point verbinden.

Skizze Wohnung4.jpg


Fragen:
  1. Ich habe den WLAN Standard-Router von Vodafone. Welches Gerät eignet sich als Ergänzung für den Access Point?
  2. Wird die Kombination mit dem Router reibungslos funktionieren oder wäre hierfür die Fritz!Box doch wieder besser (Geräte vom selben Hersteller)?
  3. Können sich die WLAN-Signale von Access-Point und Router gegenseitig stören? Können sich Geräte "versehentlich" in das falsche Netz einloggen (z. B. in das mit deutlich schlechterem Empfang)?

Danke im Voraus!

Peter
 
1. Du hast die Fritzbox 6660 gegen die neue oder alte Vodafone Station getauscht?
https://www.computerbase.de/forum/threads/vergleich-alte-und-neue-vodafone-station-wifi-6.2046355/
Funkt die Station nicht besser als die 6660?

2. Mir sind keine speziellen Kombinationen bei den Stations bekannt. Du kannst im Grunde irgendeinen Router/AP nehmen. "Mesh" usw. bekommst du so aber nicht.

3. Gängige Router/AP scannen automatisch die Umgebung und wählen einen passenden Kanal um sich nicht zu stören. Da muss man sich eigentlich keine Gedanken machen. Und ja, Geräte könnten sich auch am schlechten WLAN kleben bleiben, obwohl ein besseres WLAN in der Nähe wäre. "Eigentlich" wechseln Geräte aber irgendwann von alleine ins bessere WLAN. WLAN k, r, v, z.B. hier erklärt: https://support.apple.com/de-de/HT202628
Wenn die AP/Router von einem Hersteller kämen, könnten die von ihrer Seite aus versuchen, die Clients "umzuwerfen". Beispiel: https://avm.de/ratgeber/avm-erklaert-wlan-mesh-steering/

Ich würde nach Möglichkeit WLAN von einem Hersteller laufen lassen. Bei einem Kabelanschluss bleibt nur eine Fritzbox und deren Mesh. Wer lieber die Station nutzen möchte, kann deren WLAN deaktivieren und das WLAN einzeln neu aufbauen. Z.B. TP-Link OneMesh oder TP-Link Omada. Du kannst aber vorerst deine Idee verfolgen und einen weiteren AP/Router parallel zur Station betreiben. Das kann auch gut klappen. Erst hinterher ist man schlauer.
 
Wilhelm14 schrieb:
Funkt die Station nicht besser als die 6660?
Ist das "nicht" da versehentlich reingerutscht? Klingt so, als gingest du davon aus, dass die Fritz!Box schlechter funkt als die Station. Ich habe die Fritz!Box gerade erst widerrufen, weil wir Probleme damit hatten, die ich jedoch mittlerweile eindämmen konnten. Vielleicht etwas vorschnell, daher würde mich deine Erfahrung interessieren.


Wilhelm14 schrieb:
Ich würde nach Möglichkeit WLAN von einem Hersteller laufen lassen. Bei einem Kabelanschluss bleibt nur eine Fritzbox und deren Mesh.
Danke für deine Empfehlung/Einschätzung. Ich habe tatsächlich den Unterschied zwischen einem separaten Accesspoint (z. B. Vodafone Station + TP Link AP) und Fritz! MESH nicht so richtig verstanden. Dachte immer, dass sei nur Marketing, dass die ihr System "Mesh" nennen.

Grundsätzlich habe ich schon so viel Zeit in dieses Projekt gesteckt, dass mir tatsächlich nach einer schnellen Lösung ist. Gerne auch für 5€/Monat mit gemieteter Fritz!Box und AP von Fritz!, wenn das erfolgsversprechender ist.

Die Situation hat sich etwas geändert:
  • Ursprungsproblem war, dass unsere Wohnung groß ist und extrem abschirmt (kaum Handyempfang in der ganzen Wohnung + WLAN-Signal trotz direktem Sichtkontakt zwischen AP und Client nach 8 Metern auf 20% reduziert). Eine WLAN-Lösung war nach ewigem Hin und Her nicht erfolgsversprechend.
  • Jetzt verlege ich für alle wichtigen Clients Kabel und möchte das WLAN zur Handy-Telefonie (über WLAN) sowie für die sekundären Clients wie iPad, Handys, Drucker, usw. nutzen.
  • Im Vordergrund steht nun eine schnelle Lösung, die Anforderungen sind dabei nicht mehr ganz so hoch wie bei den Hauptclients (Arbeits-PCs).
Über eure Einschätzungen würde ich mich freuen! :-)
 
Deine magere WLAN-Abdeckung ist klar. Ich dachte, du hättest deswegen die 6660 gegen die Station getauscht, in der Hoffnung, dass das WLAN besser wird. Oder war der Grund des Tauschs ein anderer?
Erfolgsversprechend ist in erster Linie die Aufstellung eines weiteren AP/Router. Schnell wäre halt der AP/Router, den du am schnellsten besorgen kannst. Huawei AX3 für 30 EUR von Lidl wäre heute Abend schon fertig eingerichtet. Hört sich jetzt doof an, ist nur ein Beispiel.
"Elegant" wäre alles von einem Hersteller und da bleibt bei Kabelinternet nur AVM/Fritz.
 
Ja, ich hatte die Fritz!Box getauscht, da ich mir eine gute MESH-Lösung erhofft hatte. Das war ja leider nichts. Da meine Freundin dann zeitweise sogar schlechteres Netz mit der Fritz!Box 6660 hatte als mit dem alten Router (fragt nicht...), hatte ich die Option zunächst widerrufen. Wir warten allerdings seit Wochen auf die Bestätigung, deshalb steht die Box hier noch herum.

Da ich nun sowieso für alles Wichtige Kabel verlege (was ich ja ursprünglich vermeiden wollte), dient das WLAN nur noch als Support für "Kleinvieh". Da wäre halt die MESH-Lösung vielleicht doch wieder interessant. das Von daher kommt die Option Fritz!Box + AP wieder ins Spiel.

Den AP würde ich in meinem Arbeitszimmer ans Kabel anschließen. Der PC soll dann vom AP aus ebenfalls direkt mit Kabel verbunden werden (der AP soll das Signal also quasi "durchschleifen"). Sprich:

Verbindung: Router -> Kabel -> AP -> Kabel -> PC
Ziel: Kabelverbindung zum Arbeits-PC + WLAN im Arbeitszimmer für Handy, iPad, usw.

Dafür bräuchte ich ein möglichst gutes PVL-Gerät von Fritz.
Ergänzung ()

Wenn ich es richtig sehe, kommen da nur die
infrage, da alle anderen Repeater keine LAN-Brücke unterstützen, richtig? Oder gibt es günstigere Geräte aus einer vergangenen Generation, die ihr empfehlen könnt?
 
Zuletzt bearbeitet:
Man kann statt der "Repeater" auch weitere Fritzboxen nehmen. Was ist denn mit der 7490 von weiter vorne? Sofern die nicht kaputt ist, geht die eigentlich. Sonst 7530 von Ebay-Kleinanzeigen. Die haben auch mehr LAN-Buchsen. Zwar nur zwei LAN-Buchsen, aber sollte ja reichen: https://geizhals.de/telekom-speed-home-wlan-40823475-a2554346.html
Hätte gutes WLAN, wäre aber wieder ein Herstellermix.

PS: Moment, du hast mit der Station kein besseres WLAN, würdest also wieder auf Fritzbox gehen?
https://geizhals.de/avm-fritz-box-6690-cable-a2627283.html
 
Sorry, ich muß hier doch noch mal reingrätschen...

jtkrk schrieb:
[...] da alle anderen Repeater keine LAN-Brücke unterstützen, richtig?
Falsch!
Die von AVM sog. LAN-Brücke kennzeichnet nur die Anbindung via LAN und bei Repeatern den AP-Betriebsmodus.​
jtkrk schrieb:
Oder gibt es günstigere Geräte aus einer vergangenen Generation, die ihr empfehlen könnt?
Du suchst ja für Deinen Anwendungsfall ein Gerät mit zwei LAN-Ports, die die Verbindung "durchschleifen". Insofern bieten das nur die von Dir genannten Geräte - oder welche von anderen Herstellern.
Als preisgünstigere Variante könnte man natürlich auch durchaus vor dem Repeater, wo ja wohl auch ein TV platziert ist (und evtl. auch angebunden werden soll) einfach einen simplen Switch (oder bspw. alten Router) in die LAN-Verbindung zur Verteilung schalten.

Grundsätzlich:
Natürlich sollte ein herstellerhomogener Geräteverband bevorzugt werden, da die Geräte halt auf Operabilität untereinander abgestimmt sind.
Trotzdem kann das WLAN der (zumind. neueren) ConnectBox durchaus besser sein als von der FB6660, dafür bietet die FB mehr Funktionalitäten, auch bzgl. Telefonie - hilfsweise hier mal ein DSLweb-Vergleichsartikel.
Und ja, die Begrifflichkeit MESH wird als Marketingbegriff "mißbraucht" - trotzdem ist die Funktionalität in der Funktechnologie existent.
Alllerdings bindet die gemäß der IEEE 802.11 dafür vorgegebenen bzw. notwendigen Standard-Erweiterungen (eine Kombination mehrerer ist für echtes MESHing zuständig!) nicht jeder Hersteller gleich ein bzw. es wird auch nicht von allen Endgeräten unterstützt. Somit funktioniert eben auch herstellerübergreifend die Mesh-Interoperabilität leider (noch) nicht - EasyMesh (als Kennzeichnung) soll hier Abhilfe schaffen. (Bei Interesse: hier ein Artikel über MESH-WLAN.)

Es fällt wieder auf, dass auch bei oben in #43 beigefügter Grafik die geplante Positionierung des AP einfach wenig optimal gewählt ist - so, wie schon seit dem ursprünglichen Eingangsbeitrag, und somit als Grund für die schlechte WLAN-Versorgung verantwortlich sein wird.
Man sollte sich auch von dem Ansinnen verabschieden (bei vorhanden guten Abschirmungseigenschaften) die Wohnung gesamt (bei dieser Fläche) mit nur einem WLAN-"Versorger" sinnvoll abdecken zu können.
M. E. "verschiebst" Du die ganze Zeit nur die Ursache, anstatt sie zu beseitigen.
Sicherlich ist eine kabelgebundene Versorgung schonmal der richtige Anfang, aber dann muß man auch konsequent alle Optimierungsmöglichkeiten nutzen. Dazu gehört nunmal auch eindeutig die richtige Positionierung gemäß dem Bedarf für die WLAN-Versorgung herauszufinden und dementsprechend die geeigneten WLAN-"Sender/Empfänger" zu platzieren, um eine sinngebundene und zielorientierte (Mesh-)Abdeckung zu erhalten.

Ohne mir jetzt den ganzen Thread nochmal im Einzelnen durchzulesen:
Der Kabelanschluß kommt dort im Flur an, wo der Router jetzt i. o. Grafik positioniert ist?
Und werden nicht vllt. auch im WoZi noch (mehrere) Geräte betrieben, für die eine Kabelanbindung auch optimaler wäre?​
 
Danke @User007 für deine ausführliche Antwort!

Dann habe ich zumindest die richtige Hardware bestellt. Danke noch einmal für den Hinweis mit der LAN-Brücke. Ich hatte auf der AVM-Seite gelesen, dass alle Geräte eine solche besitzen, mich aber gewundert, warum sie nur über einen LAN-Anschluss verfügen. Hat für mich keinen Sinn gemacht. Aber du hast nun Licht ins Dunkel gebracht. :-)

Bzgl. der Positionierung: Der Router wird nun im Flur platziert. Dort versorgt er den Fernseher im Wohnzimmer mit WLAN sowie den Fernseher im Schlafzimmer. Das sollte gut funktionieren. Falls nicht, kann eine weitere Anbindung mit LAN erfolgen. Weitere Geräte existieren nicht. Die Verlegung der Routers vom Wohnzimmer in den Flur sollte schon einmal für ein zentraleres Netz sorgen.

Darüber hinaus dient der AP lediglich dazu, das Kinder-/Arbeitszimmer ganz unten ebenfalls mit WLAN zu versorgen. Eben als zielorientierte Lösung. Durch die zentrale Aufstellung des Routers sollte der Rest der Wohnung einigermaßen versorgt sein.

Ich habe mir jedoch überlegt, den Repeater nun neben der Tür im KZ/AZ zu positionieren. Damit deckt er einen größeren Bereich der Wohnung ab (Flur, evtl. Küche).

Dann müsste doch eigentlich alles passen, oder?

Beste Grüße!
 
Zurück
Oben