- Registriert
- Juni 2010
- Beiträge
- 1.535
Edit: 10.12.22
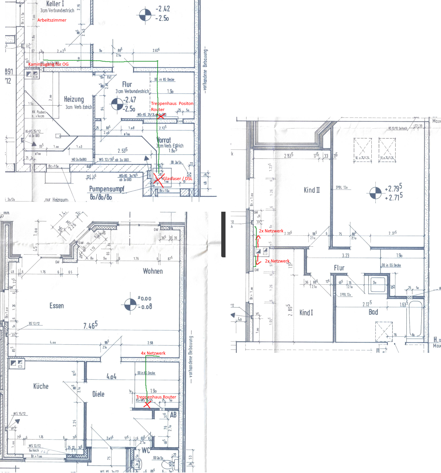
Späte Rückmeldung, ich musste mich erstmal um die anderen Gewerke kümmern:
Hab jetzt auch einen spartanischen Verlegeplan hier angehangen.
Ich hatte den Punkt für die Geräte (NAS, Switch) im Arbeitszimmer Keller überlegt. Router an die Wand in Treppenhaus. Bis dato ist von hier Überall im Haus WLAN Verfügbarkeit sichergestellt, zumindest ausreichend für Smartphones und iPads.
Netzwerk ins OG lege ich über den 2. Kaminschacht (nicht in Betrieb). Schlafzimmer bleibt Schlafzimmer, kein TV, keine Konsole etc.
Die Verdrahtung müsste dann wie folgt aussehen?
Glasfaser -> Router im Flur
Router im Flur -> Switch Arbeitszimmer
Switch -> NAS, Netzwerk AZ, Kinderzimmer, Wohnzimmer
bzw.
Router im Flur -> Switch + Wohzimmer
Switch -> NAS, Netzwerk AZ, Kinderzimmer
Ist das so in etwa sinnig?
___________________________
Hallo zusammen,
ich werde Anfang des Jahres ein Haus übernehmen im Zuge dessen etwas sanieren.
Seinerzeit ist schon einmal mehr oder weniger provisorisch etwas verlegt worden (siehe Bilder anbei).
Was ich mir vorstelle:
In einem Kellerraum kommt das Arbeitszimmer herein. Hier soll dann neben den Rechner ein NAS hinkommen.
Ins Treppenhaus der Router um WLAN bis ins OG zu bekommen. Im Wohnzimmer im besten Fall zwei Netzwerkdosen.
Ob ich Kabel ins OG ziehen kann/werde ins derzeit noch nicht klar.
Was genau benötige ich, um alles Ordnungsgemäß zu verkabeln?
Blau: ist derzeit der Router angeschlossen
Gelb: Kabel vom Glasfaser modem
Rot: Kabel in Richtung Keller, derzeit unbenutzt und unklar ob noch intakt (sollte aber)
Kann ich einfach zwei weitere Kabel vom Glasfasermoden rüber in den Kellerraum bringen, oder muss ich über den Router gehen?
Halbgares Verständnis ist noch vorhanden, stammt aber eher aus LAN Zeit vor 15 Jahren
Besten dank und guten Start in die Woche.
Grüße
Späte Rückmeldung, ich musste mich erstmal um die anderen Gewerke kümmern:
Hab jetzt auch einen spartanischen Verlegeplan hier angehangen.
Ich hatte den Punkt für die Geräte (NAS, Switch) im Arbeitszimmer Keller überlegt. Router an die Wand in Treppenhaus. Bis dato ist von hier Überall im Haus WLAN Verfügbarkeit sichergestellt, zumindest ausreichend für Smartphones und iPads.
Netzwerk ins OG lege ich über den 2. Kaminschacht (nicht in Betrieb). Schlafzimmer bleibt Schlafzimmer, kein TV, keine Konsole etc.
Die Verdrahtung müsste dann wie folgt aussehen?
Glasfaser -> Router im Flur
Router im Flur -> Switch Arbeitszimmer
Switch -> NAS, Netzwerk AZ, Kinderzimmer, Wohnzimmer
bzw.
Router im Flur -> Switch + Wohzimmer
Switch -> NAS, Netzwerk AZ, Kinderzimmer
Ist das so in etwa sinnig?
___________________________
Hallo zusammen,
ich werde Anfang des Jahres ein Haus übernehmen im Zuge dessen etwas sanieren.
Seinerzeit ist schon einmal mehr oder weniger provisorisch etwas verlegt worden (siehe Bilder anbei).
Was ich mir vorstelle:
In einem Kellerraum kommt das Arbeitszimmer herein. Hier soll dann neben den Rechner ein NAS hinkommen.
Ins Treppenhaus der Router um WLAN bis ins OG zu bekommen. Im Wohnzimmer im besten Fall zwei Netzwerkdosen.
Ob ich Kabel ins OG ziehen kann/werde ins derzeit noch nicht klar.
Was genau benötige ich, um alles Ordnungsgemäß zu verkabeln?
Blau: ist derzeit der Router angeschlossen
Gelb: Kabel vom Glasfaser modem
Rot: Kabel in Richtung Keller, derzeit unbenutzt und unklar ob noch intakt (sollte aber)
Kann ich einfach zwei weitere Kabel vom Glasfasermoden rüber in den Kellerraum bringen, oder muss ich über den Router gehen?
Halbgares Verständnis ist noch vorhanden, stammt aber eher aus LAN Zeit vor 15 Jahren
Besten dank und guten Start in die Woche.
Grüße
Anhänge
-
9BA46FAE-EE8E-4D86-B474-0FC27B6F2AD9.jpeg3,1 MB · Aufrufe: 1.712 -
4C3C52C3-9B78-4E90-9215-52364546A2E9.jpeg2,1 MB · Aufrufe: 851 -
46E5443A-844D-4B92-BC83-D50B6C9B781E.jpeg1,3 MB · Aufrufe: 768 -
05AC47B9-195B-4989-BB14-05624FC443ED.jpeg645,2 KB · Aufrufe: 879 -
20492D8C-7909-4056-BF3D-654713773926.jpeg594,9 KB · Aufrufe: 1.015 -
erd.pdf774,3 KB · Aufrufe: 296
-
keller.pdf762,9 KB · Aufrufe: 301
Zuletzt bearbeitet: