Benmchmarking 2
TeamViewer Motive 3

Heimnetzwerk im EFH - Was wird benötigt?

Sauerländer

Cadet 4th Year
🎅Rätsel-Elite ’24
Registriert
März 2007
Beiträge
94
Hallo,

habe schon etwas recherchiert, frage aber lieber nochmal nach bevor ich was falsches bestelle...

Geplant ist der Aufbau eines Heimnetzes in einem neuem EFH.
Vorhanden ist eine TAE im Kellerflur, sowie insgesamt acht Duplex Cat7-Verlegekabel, die von den Räumen im OG/EG/Keller in den HWR(Keller) führen. Dort soll dann der Netzwerkschrank hängen.

Benötigte Hardware für Internet/Telefon(VoIP)/Netzwerk:

Würde das so ungefähr passen?

Die Fritzbox kommt dann mit in den Schrank(oder drauf) und falls das Signal für das ganze Haus zu schwach ist, mit Repeatern arbeiten?

Was wird eigentlich gemacht wenn der Techniker zur Freischaltung vorbeikommt? Brauch ich dann schon einen Router oder wird nur kurz gemessen, ob alles ok ist?

Vielen Dank

Gruß
 
8 CAT-Doppeldosen = 16 Kabel erscheint mir etwas zu wenig.
Ich habe hier 16 Doppeldosen CAT 6a verlegt. Kabel Cat 7.
TV und CD/DVD-Player, Radio/Verstärker/Reciever wollen heutzutage auch einen Netzwerkanschluss.
Switch: Zyxel GS-1920-24 managed ca. 130-150 EUR; Auf PoE habe ich verzichtet.
Patchkabel ca. 50 cm und viele Kabelbinder.
Zur Geschwindigkeitserhöhung kann man 2 Anschlüsse paralle schalten (Link Aggregation).
Fritzbox unbedingt außerhalb des Patchfeldes aufstellen. Das Patchfeld schirmt die Signal ab.
WLAN funktioniert übrigens nicht. Zuviel Häuslebauer verzichten aus Kostengründen auf EDV-Kabel im Haus und Nutzen WLAN. Das ist dann Abends voll. Streaming über WLAN in dieser Zeit kann ich hier vergessen (2,8 + 5 GHz-Netz).
Für den Techniker ist normalerweise an der Anschlusdose schluss. Soll der mehr machen kostet das zusätzliches Geld.
 
  • Gefällt mir
Reaktionen: Sauerländer
Prinzipiell ist das ok so. Ob 25 cm Patchkabel im Schrank reichen, kann man aus der Ferne nicht beantworten. Es kommt darauf an wie bzw. wo Patchpanel und Switch verbaut sind. Sind sie direkt untereinander, kann man 1:1 von oben nach unten patchen und 25 cm werden wohl reichen. Wenn sie nicht untereinander sind und/oder kreuz und quer verbunden sind - zB weil man am Patchfeld nach Räumen/Dosen sortiert auflegt, am Switch dann aber zB immer nur einen Port verbindet und von 1 hochzählt - dann wird's eng. Da eine Handvoll Patchkabel aber kaum ins Gewicht fällt, wäre es zu verschmerzen, wenn man noch ein paar nachbestellt. Im übrigen ist es sinnfrei, Cat7 Patchkabel zu kaufen. Die Dosen und das Patchpanel sind eh nur Cat6(a) und da bringt dir ein Cat7 Patchkabel überhaupt nichts. Bei den Verlegekabeln ist das etwas anders. Zwar bringt es auch da nicht, aber sollte irgendwann mal der Rest ebenfalls auf Cat7 aufgerüstet und vor allem auch Cat7-mäßig genutzt werden, dann muss man immerhin nicht alle Kabel aus den Wänden reißen.

managed/unmanged Switch: Das kommt ganz darauf an was du vorhast. Ein vollwertiger managed Switch (Layer 3) kostet mehrere Hundert Euro und kann deutlich mehr als reines Switching. Ein web/smart managed Switch (Layer 2) ist ein Zwischending zwischen einem dummen Switch und einem managed Switch. Entscheidende Funktionen wären beispielsweise VLANs, IGMPv3 und dergleichen. Ein dummer Switch kann das nicht.

Ob VLANs notwendig sind, hängt aber davon ab was du mit dem Netzwerk tun willst. Mit VLANs kann man einen Switch effektiv splitten, also zB aus 1x24 mach 1x12 + 1x8 + 1x4. Damit lässt sich dann beispielsweise ein Gast-Netzwerk abtrennen oder ein Werkstatt-/Büronetzwerk.

IGMPv3 wiederum bezieht sich auf Multicasts. Ohne das jetzt im Detail zu erklären: Telekom Entertain arbeitet mit Multicasts. Sobald auf dem Verbindungsweg Router <-> Receiver ein Switch beteiligt ist, der kein IGMPv3 kann, wird das komplette Netzwerk mit dem Stream geflutet und das Bild bleibt stehen. Daher gilt: Bei Entertain muss der Switch IGMPv3 beherrschen. Dasselbe gilt für andere Streaming-Plattformen, die mit Multicasts arbeiten. Ist beides kein Thema, braucht der Switch prinzipiell kein IGMPv3.
 
  • Gefällt mir
Reaktionen: Sauerländer, Drahminedum und Tarnatos
Ein aktueller smart managed Switch hat meistens IGMPv3, daher sollte dieses Feature auf jeden Fall vor dem Kauf im Datenblatt überprüft werden.
Meiner hat das auch: Netgear GS724T-400. Hab den bei Amazon im Angebot für 111€ gekauft.
PoE kannst du auch über Zusatzgeräte nachrüsten, falls du das brauchst (IP-Kamera, WLAN-AP,...). Switches mit PoE haben meistens einen lauten Lüfter und das wollte ich nicht.

Ansonsten sieht deine Liste gut aus. Statt Repeater solltest du einen AP nehmen, z. B. von Ubiquiti.

Folgende Info hab ich mal gehört. Ich weiß aber nicht wirklich, ob das stimmt:
Wenn du komplett bei Ubiquit bleibst (Switch + APs), dann kannst du die Konfiguration zentral machen. Einfacher geht es nicht.
 
Zuletzt bearbeitet:
  • Gefällt mir
Reaktionen: Sauerländer
wahli schrieb:
Wenn du komplett bei Ubiquit bleibst (Switch + APs), dann kannst du die Konfiguration zentral machen. Einfacher geht es nicht.
Das ist das UniFi-System. Das UniFi Security Gateway (USG; Router), die UniFi-Switches (US) und die UniFi Access Points (UAP) werden alle über ein und dasselbe Programm konfiguriert und gesteuert, dem UniFi-Controller. So richtet man beispielsweise genau ein einziges Mal die VLANs ein und verwendet sie ganz einfach am Router, Switch und AP, ohne jedes Mal aufs Neue die ID eingeben zu müssen wie es bei Einzelgeräten der Fall wäre.

Zwar bin ich durchaus von Ubiquiti überzeugt und setze selbst die Access Points ein bzw. verbaue sie bei Bekannten oder gar in befreundeten Hotels, aber UniFi als solches kann seine Vorteile erst dann ausspielen, wenn man eine entsprechende Anzahl an Geräten hat. Bei zB zwei APs und einem Switch sind die Vorteile von UniFi eher überschaubar. Es ist ja nicht so, dass man sich täglich einloggen muss, um die VLANs zu konfigurieren. In der Regel macht man das genau einmal bei der Einrichtung und danach eher sporadisch. Wenn man sich stattdessen separat in einem Switch einloggen muss, ist das aber absolut kein Beinbruch.
UniFi ist also als Gesamtsystem beispielsweise für Firmen-Installationen mit einem Dutzend Switches und etlichen APs besonders interessant. Für private Zwecke ist diese gemeinsame Komponente eher nice-to-have.

Gerade die UniFi-Switches sind ein zweischneidiges Schwert. Sie sind vergleichsweise teuer und haben auch die eine oder andere Schwäche gegenüber Konkurrenzprodukten von Zyxel und Co.


Übrigens: Nicht jeder smart managed Switch kann IGMPv3. Da muss man ganz genau hinschauen, weil manchmal nur IGMPv2 unterstützt wird. smart bzw. web managed sind in keinster Weise geschützte Bezeichnungen und daher definiert jeder Hersteller das Set an Funktionen demnach auch anders. Es sind nun mal Hybride aus einem dummen Layer2 Switch und einem kastrierten Layer3 Switch. Meistens umfasst der Funktionsumfang von web/smart managed Switches durchaus IGMPv3 und VLANs, aber der Blick ins Datenblatt ist dennoch Pflicht, um böse Überraschungen zu vermeiden.
 
  • Gefällt mir
Reaktionen: Sauerländer
@Raijin
Wegen IGMP: Danke, so meinte ich es eigentlich. Hab es oben editiert. Man sollte nichts schreiben, wenn man krank ist...
 
Leider geht es sogar noch weiter. Ich habe in meinem Netzwerk mal den TP-Link SG108 mit 8 Ports und das Schwestermodell mit 16 Ports getestet. Beim 8er lief IGMPv3 mit meinem Entertain 1a, aber mit dem 16er funktionierte es überhaupt nicht. Firmware jeweils auf dem neuesten Stand. Offenbar ist die IGMPv3-Implementierung in der 16er Version aber fehlerhaft. Da hilft das Datenblatt dann leider auch wenig. TP-Link hatte im übrigen keine Erklärung dafür, evtl. war mein 16er Modell auch defekt..

Seitdem bin ich arg skeptisch was IGMPv3 betrifft und halte mich daher weitestgehend an die übliche Entertain-Empfehlung: Netgear. Bin zwar kein allzu großer Fan von Netgear, aber damit läuft Entertain quasi garantiert. Eigentlich würde ich gerne mal Zyxel ausprobieren, weil ich die Switches recht interessant finde. Aber ich hab keine Lust auf Trial'n'Error mit hin und herschicken. zZt habe ich einen Receiver direkt am Speedport und den zweiten habe ich an einem Netgear GS108T.
 
Super, das hilft mir schon mal sehr weiter.

Bzgl W-LAN: hätte da eigentlich keine großen Anforderungen, eigentlich nur für Smartphones/Tablets. Streaming würde dann hauptsächlich über PCs und Fernseher über Ethernet laufen.

Werde mir wohl erst mal die FritzBox kaufen - dann hätte ich schon mal provisorisch Internet und Telefon - und dann testen wie gut das W-LAN läuft. Einen Repeater hätte ich auch noch zum testen. Wenn das nicht reicht, muss wohl noch ein AP her.
 
Du hast schon einen Repeater - nicht zufällig einen AVM "Repeater"? AVM nennt die Dinger Repeater, aber im Prinzip sind es auch Access Points. Es kommt auf den Anschluss bzw. die Konfiguration an.

Repeater (techn. Bezeichung) sind WLAN-Zugangspunkte, die ihrerseits via WLAN am Haupt-Netzwerk hängen.
Access PointS sind WLAN-Zugangspunkte, die via LAN-Kabel am Haupt-Netzwerk hängen.

Wenn man zB den "Repeater" 1750 von AVM via Kabel ans Netzwerk anschließt, ist er ein AP, egal was in großen Lettern auf der Packung steht ;)


Was heißt das für dich? Du kannst erstmal mit der Fritzbox starten. Reicht das WLAN nicht aus, kannst du an einer beliebigen Dose im Haus einen Access Point anschließen. Das kann ein beliebiger WLAN-Router sein, ein AVM RepeaterAlsAP oder auch dedizierte Access Points wie die oben erwähnten UAPs von Ubiquiti. Je mehr Access Points du jedoch brauchst, um das Haus komplett abzudecken, umso mehr empfiehlt sich dann das beschriebene UniFi-System. Switch, etc. kann man ja von anderen Herstellern kaufen, aber für die APs ist UniFi schon sehr cool. Einmal die SSID einrichten und dann per Klick einfach nur auf den neuen AP übertragen. Keine Schlüssel doppelt eintippen oder im worst case vertippen, etc..
 
  • Gefällt mir
Reaktionen: Sauerländer
Der Repeater ist auch von AVM, allerdings das kleine Modell 310, das nur in die Steckdose kommt.

Ein AP leitet aber nur W-LAN weiter und nicht DECT? Dann bräuchte ich (unter Umständen) noch einen seperaten DECT-Repeater?
 
Ein AP leitet nichts weiter (abgesehen von LAN<->WLAN). Ein AP ist ein neues Funkfeuer, sogesehen ein komplett eigenständiges WLAN, das aber hinter den Kulissen mit demselben Netzwerk verbunden ist (via LAN). Ein Repeater leitet sogesehen weiter, weil er ein eingehendes Signal quasi erneut aussendet, er wiederholt also effektiv jedes Daten-Paket, wiederholen = to repeat, daher der Name.

DECT hat mit WLAN nun mal so gar nichts zu tun. Das ist so als wenn du fragen würdest: "Die Wasserleitung liefert aber auch das Gas für den Herd, oder?"

Um DECT weiterzuleiten braucht man einen DECT-Repeater - nicht zu verwechseln mit deinem WLAN-Repeater. Da WLAN-Repeater im Netzwerkforum die gängigere Art eines Repeaters ist, wird im Allgemeinen der Zusatz WLAN- weggelassen. Fakt ist aber, dass es sich um zwei gänzlich unterschiedliche Geräte handelt.


Alternativ zu einem DECT-Repeater kann man jedoch auch einen TAE-Port des Routers mittels RJ45 Adapter an ein Patchfeld anschließen und am anderen Ende der Leitung an der Dose mit einem ähnlichen Adapter von RJ45 auf eine analoge Basis gehen, um dort wiederum eigene DECT-Telefone anzumelden. Das Netzwerkkabel zwischen Patchfeld und Dose wird also als Verlängerung des TAE-Ports am Routers verwendet.

Eine weitere Variante ist IP-Telefonie. Ein eigenständiges IP-Telefon wie zB das C430A GO IP von Gigaset hat einen LAN-Anschluss und benötigt lediglich eine Netzwerk- bzw. Internet-Verbindung. SIP-Daten des VoIP-Accounts eingeben und los geht's. Ähnlich funktioniert das zB auch mit einer zweiten Fritzbox, die ebenfalls so im Netzwerk hängen und als VoIP-Gateway für dort per DECT/analog verbundene Telefone dienen kann.
 
  • Gefällt mir
Reaktionen: Sauerländer
Ich klinke mich hier mal ein und lese mit weil ich vor derselben Frage stehe...
Neubau wo ich genügend Dosen setzen möchte - für jedes Zimmer mind. 2 Anschlüsse
+ WLAN Mesh System mit 2-3 AccessPoints. Ähnlich dem System von Zyxel Multy X - nur dass ich die Dinger gern über Kabel miteinander verbinden möchte um bestmögliche Performance zu erhalten.
Switch wäre ein Zyxel GS1900-24E geplant. Ansonsten FritzBox mit 1-2FritzFon.
Wisst ihr hier einen AP welcher für den Fall geeignet wäre?

VG
Andi
 
Mesh über APs ist sinnfrei. Die Kerneigenschaft von Mesh ist eben das namensgebende vermaschte WLAN. Dabei verbinden sich mehrere Nodes dynamisch untereinander, um die vermeintlich beste Verbindung zu erreichen. Die Dynamik entsteht dadurch, dass durch den Zukauf eines zusätzlichen Nodes, das komplette Mesh neu ausgerichtet wird, um die potentielle Route über den neuen Node mit einzubeziehen.

Bei Access Points ist das reichlich sinnlos. Ein Access Point ist via Kabel mit dem Netzwerk verbunden und dann wird die Verbindung immer über dieses Kabel laufen - eine direkte elektrische Verbindung - anstatt Mesh-mäßig über 7 Ecken im Mesh-WLAN hin und her gefunkt zu werden.

Wenn in einem Mesh Access Points verbaut sind, dann sind sie lediglich als Ergänzung zu sehen damit zB der Node auf dem Dachboden nicht erst ins OG, dann ins EG und am Ende in den Keller repeatet wird - Mesh-Nodes sind nämlich effektiv Repeater. Mit einem Access Point im OG wäre das Ende der gemeshten WLAN-Verbindung bereits dort und der Rest liefe dann über das Kabel. Sobald "alle" Nodes APs sind, ist die Mesh-Funktionalität sinnfrei. Um beim Dachboden zu bleiben: Wenn der Dachboden-AP selbst am LAN hängt, wozu sollte er dann ins OG "meshen"? Das einzige Argument wäre hier unter Umständen das Roaming. Da Roaming ja grundlegender Bestandteil von Mesh ist, kann es sein, dass das besser funktioniert als bei einem AP-System. Allerdings kommt es dabei auf die APs an, da es zB mit UniFi von Ubiquiti auch APs gibt, die untereinander sehr gut roamen können - ganz ohne Mesh.


Mesh ist im Augenblick das Schlagwort in der WLAN-Branche. Nur weil es diese Technologie gibt, heißt es aber noch lange nicht, dass sie besser ist als alles was es davor schon gab. Vor allem heißt es nicht, dass es für jedes Szenario auch wirklich sinnvoll ist. Mesh ist und bleibt weitestgehend ein Repeater-artiges System. Wobei auch da große Unterschiede herrschen. Billig(st)e Pseudo-Mesh-Systeme sind tatsächlich nur Repeater-Systeme, die sich eben untereinander ein bischen dynamisch verbinden. Gute und meist auch teure Meshs haben hingegen eine dedizierte Funkverbindung untereinander, die unabhängig vom bekannten WLAN-n bzw. WLAN-ac ist und somit zumindest in der Theorie eine deutlich bessere Performance bieten als reine Crossband-Meshs.

Die beste Performance erreicht man bei WLAN daher nach wie vor mit einem adäquaten AP-basierten WLAN. Nur dann, wenn man an mehreren Stellen schlicht und ergreifend keinen LAN-Zugang hat und auf Repeater setzen muss (wobei an ja Kabel ziehen könnte), kann ein Mesh seine Vorteile ausspielen.

Das ist wie mit 4K. Jeder TV-Hersteller predigt, dass 4K ja das Killer-Feature ist und mit 4K rückt der Weltfrieden ein Stück näher. Fakt ist aber, dass ein signifikanter Teil der Nutzer immer noch alte DVDs guckt und somit nicht mal FullHD ausnutzt - aber Hauptsache 4K ist ein Muss, schon klar ;)

Zum Zyxel Multy: Ich kenne das System nicht und kann daher auch nicht wirklich etwas dazu sagen. Obige Ausführungen sind allgemeiner Natur. Eine weit verbreitete Empfehlung im WLAN ist hier im Forum das erwähnte UniFi von Ubiquiti. Ein UAP AC Pro kostet ca. 130€, der kleine Bruder Lite kostet ca. 80€. UniFi ist ein semiprofessionelles WLAN-System, das über eine zentrale Controller-Software konfiguriert wird. D.h. einmal das Programm am PC oder idealerweise einem 24/7 Server/NAS/Cloud Key starten und dort einmal die WLAN(s) definieren und mit wenigen Klicks auf eine beliebige Anzahl an APs verteilen anstatt sich in jeden AP einzeln einloggen zu müssen.
 
  • Gefällt mir
Reaktionen: h00bi und Andi111
Für WLAN in Neubauten sind die von Raijin beschriebenen LAN-basierten Access Points erste Wahl. Mesh-Lösungen sind von der Performance her unterlegen und nur dann eine Alternative, wenn keine LAN-Kabel verlegt werden können.
Für ein durchschnittliches EFH mit 50-80qm Grundfläche und Stahlbetondecken reicht ein AP pro Etage. Für die genannten UniFi AP wäre die Positionierung an der Decke ideal. Insofern sollten Deckenauslässe für LAN-Kabel eingeplant werden.
 
  • Gefällt mir
Reaktionen: Andi111
Hmm - an der Decke möchte ich nur ungern was hinschrauben. Bekommen nämlich eine Sicht-holzbalkenlager-decke... Hätte daher überlegt in einem Küchenhochschrank - die Rückwand etwas aus zu schneiden und dort die LAN-Dose und eine Steckdose zu verbauen. Dann wäre der AP extrem frauenfreundlich versteckt :D
Aktuell hab ich eine Fritz7490(Elternwohnung) + Fritz1750e (bei mir per LAN-Brücke) im Einsatz. Beiden mit Kabel + Zwischenswitch vebunden. Also alle zwei als "Standalone-Funknetzwerke". Und irgendwo hakt es... Weil eig. 50Mbit gehen sollten - es aber manchmal nur mit ~25-30Mbit bei mir funktioniert. Aber auch sonst ist die Performance nicht so optimal... Zugriffszeit auf meine NAS, Datendurchsatz usw... :rolleyes:
Daher möchte ich im Neubau so viel Geräte wie möglich mit Kabel anschließen.
 
Zuletzt bearbeitet:
Gescheite Access Points benötigen keine separate Stromversorgung, sondern können (& sollten) über das Netzwerkkabel mit Strom versorgt werden. Entweder über einen gesonderten PoE-Injektor, oder einen PoE-fähigen Switch.
Die angesprochenen Ubiquiti APs sind PoE-fähig.
Du hättest also "nur" den Stress einen LAN-Anschluss zu verlegen statt LAN + Strom.

Bzgl. WAF: Die Ubiquitis haben größenteils ein halbwegs elegantes Design und sehen allemal "harmonischer" aus als die Fritz-Repeater-Kanten. Sehen aus wie eine Mischung aus eleganter Deckenleuchte & Rauchmelder. Und da ja eh Rauchmelder an die Decke müssen, tuts ein weißes Ufo mehr oder weniger wohl auch noch.
Die dezente blaue Ringbeleuchtung kann auf Bedarf auch abgeschaltet werden.

Der Injektor selber kann im Netzwerkschrank hängen (dito PoE-Switch).
Persönlich würde ich aber eher Richtung PoE-fähigem Switch zielen, wenn die Geräte eine gewisse Anzahl übersteigen. Ansonsten hast du im Netzwerkschrank eine Handvoll Bricks liegen die alle eine Steckdose brauchen ^^
 
  • Gefällt mir
Reaktionen: Raijin
Dem kann ich nur zustimmen. Dedizierte APs wie die UniFi APs von Ubiquiti sind vom Auftreten her in der Regel deutlich unauffälliger. Mach dir selbst ein Bild davon: UAP AC Pro bzw. UAP AC Lite

PoE hat @t-6 ja schon gut erklärt. LAN-Kabel (mit PoE) in den AP rein und gut is, kein extra Netzteil notwendig (abgesehen vom PoE-Injektor bzw. -Switch im Schrank).

Idealerweise werden solche APs aber definitiv an der Decke montiert, da ihre Abstrahlcharakteristik darauf ausgelegt ist. Man kann sie aber trotzdem auch an der Wand montieren. Im worst case muss man dann vielleicht einen extra AP setzen, um die Abdeckung zu vervollständigen.
 
t-6 schrieb:
tuts ein weißes Ufo mehr oder weniger wohl auch noch.
^^

Die Ubis lassen sich aufgrund ihrer gleichmäßigen Form auch einfach folieren, hat so gut wie null Auswirkung auf den Empfang und man sieht ihn kaum an Holzdecken oder anderen farbigen Decken.
 
Sorry für die späte Antwort...
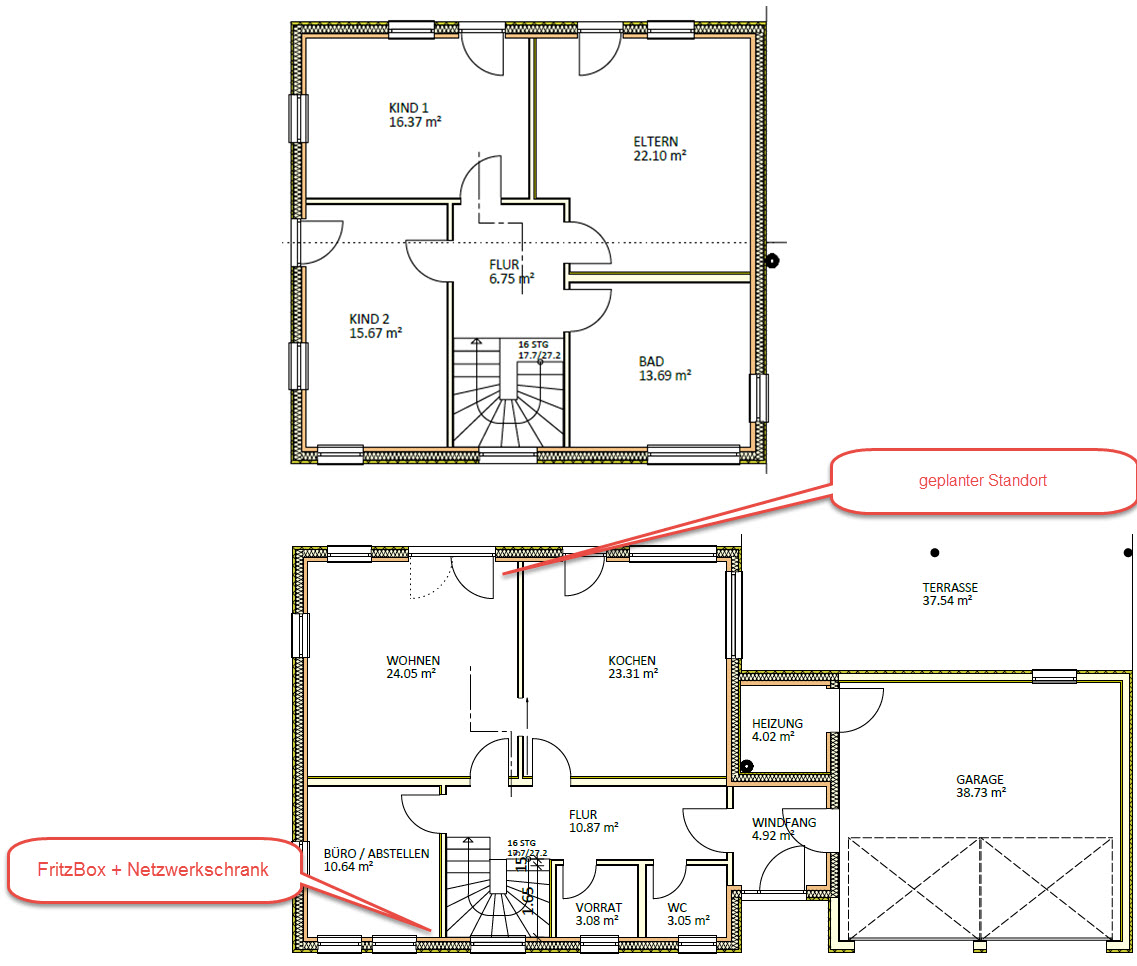
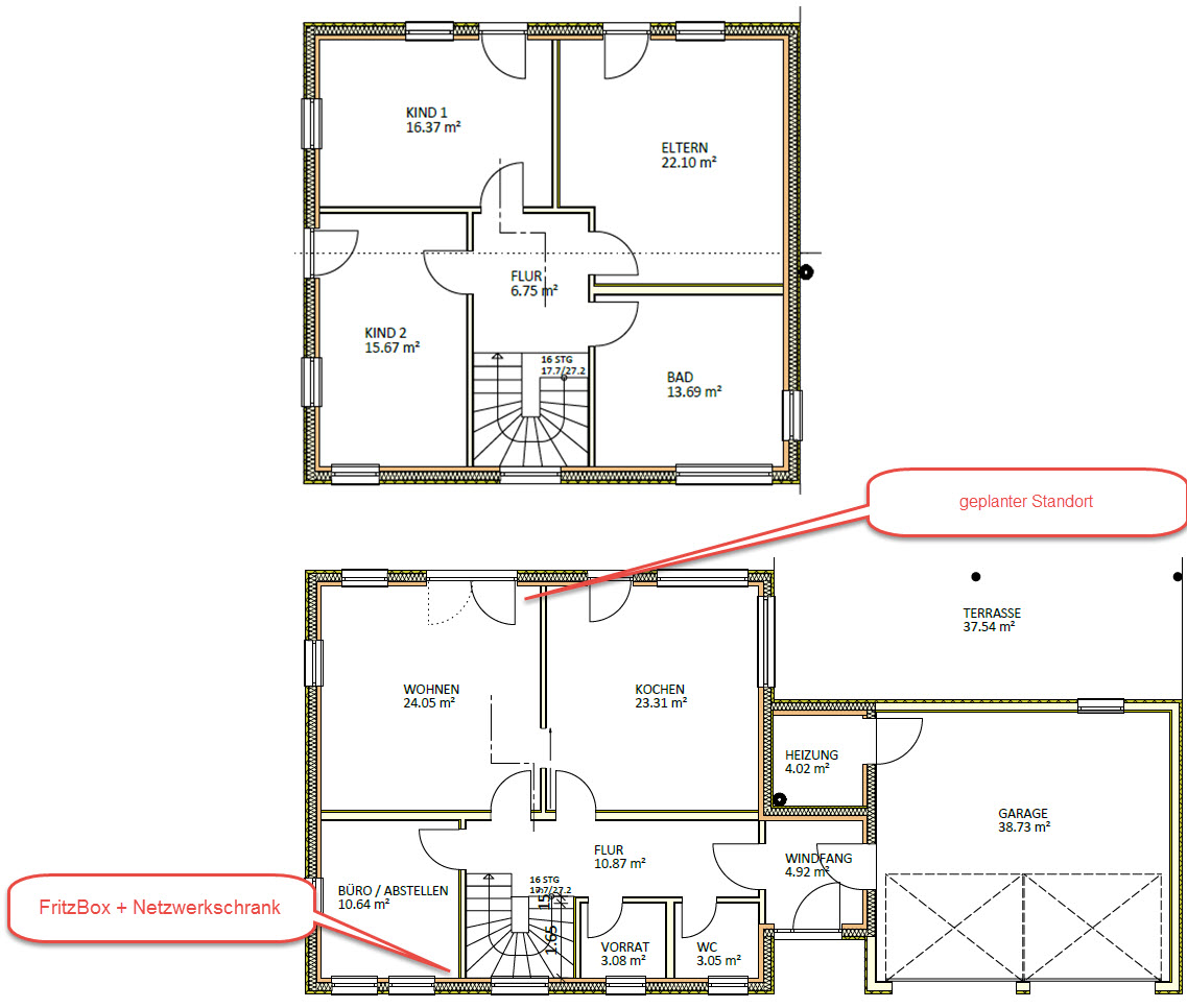
Ich könnte so einen ja auch an mittig im Haus an die Innenseite einer Außenwand montieren?
Dann hätte ich zudem den Vorteil dass er die Obergeschosse auch mit Wlan versorgt? :-)
Denn die Wand wird ganz normal weiß gestrichen... Das dürfte für meine Frau bestimmt kein Problem sein... Außerdem kann man in der Installationsebene (Holzständerbauweise) die Kabel easy verlegen.
Ggf. kommt nochmal ein zweiter in´s Dachgeschoss - wenn im OG besserer Empfang benötigt wird.
Ich hab mal einen Plan angehängt wo ich mir ihn vorgestellt hätte...
 

Anhänge

  • 2018-06-19_09-36-30.jpg
    2018-06-19_09-36-30.jpg
    186,3 KB · Aufrufe: 454
Andi111 schrieb:
Ich könnte so einen ja auch an mittig im Haus an die Innenseite einer Außenwand montieren?
Dann hätte ich zudem den Vorteil dass er die Obergeschosse auch mit Wlan versorgt? :-)
Mach dir da keine allzugroßen Hoffnungen. Der empfohlene Montageort ist die Decke und nicht die Wand. Darauf ist so ein AP ausgerichtet. Die Wandmontage ist zwar auch möglich, aber das wird weitestgehend immer schlechter sein als die empfohlene Deckenmontage - allein schon wegen des Orts (Mitte der Etage vs. Außenwand). Wenn du den AP zB im EG im Flur oder ihm Wohnbereich an die Decke schraubst, reicht er unter Umständen für das ganze Haus. Baust du ihn wie in der Skizze an die Außenwand, kann es sein, dass im OG im 2. Kinderzimmer nur noch wenig ankommt.

Es kann sein, dass die Abdeckung an der Wand ausreicht, aber es ist nahezu unmöglich, das vorab abzuschätzen, weil WLAN so oder so von der Umgebung abhängt, Nachbar-WLANs, Wände bzw. Material, Entfernung, Störsignale, etc..
 
  • Gefällt mir
Reaktionen: Andi111
Zurück
Oben