Wasserkühlung Beratung

MyHotPursuit

Ensign
Registriert
März 2011
Beiträge
140
Hallo Liebe CB-Community
Danke das ihr euch für meine Frage Zeit nehmt!
Ich bin beim Thema Wakü noch ziemlich unbedarft und je mehr ich mich einlese um so mehr Fragen kommen auf.
1. Welche Bauteile möchte ich mit Wasser kühlen?

Welche Hardware habe ich genau?
CPU: i7 2600K
GPU: AMD 6950
Ist ein Wakü-Einbau vorbereitet?
Bis jetzt noch nicht, es sollte ein externer Triple-Radiator sein. Oder reicht ein Dual-Radiator?


2. Was möchte ich erreichen?

eine möglichst leise Kühlung und
möglichst viel Wärme abführen (Overclocking)



3. Wie hoch ist mein Budget?
200€



Ich habe bereits meinen Computer selber zusammengebaut, jedoch habe ich bisher noch keine Wakü zusammengebaut.


Ich wäre euch sehr verbunden wenn ihr mir Vorschläge machen könntet.

MFG
MHP

P.S: Was ganz wichtig ist mein Gehäuhse ist das CM Storm Scout, welches nicht optimal für Wakü vorbereitet ist.
 
200€? Dann gute nacht!

Also der Grakakühler dürfte schon um die 70€ kosten. Dazu kommt die Pumpe, AGB, Radi und CPU Kühler ich denke das man da schon mit 250-300€ rechnen muss wenn man eine leise und kühle Wakü haben will.

Dein Case wäre auch noch interresant ;)!
 
Zuletzt bearbeitet:
Was hast du denn für ein Gehäuse?
Das Budget ist zu gering, 200€ reichen für eine Wakü mit CPU und Dual/Triple, aber nicht für den Kühler einer aktuellen Grafikkarte. Das musst du nachrüsten oder draufhauen.
 
bei dem budget wird es sehr eng werden da was gescheites zu bekommen, mal über eine gebrauchte wakü nachgedacht? da lässt sich deutlich mehr bei dem budget rausholen. sollte wenn möglich schon nen tripple radi werden
 
200 € -> Keine Chance.

für was Vernünftiges musst du ca. das doppelte hinlegen - wenn das zu viel ist gibt es auch gute Luftkühler. :)

Zum Radi -> mehr ist leiser/kühler mit dem Dual mMn unmöglich kühlbar (bei gleichzeitigem OC) mit nem Tripple nicht leise kühlbar.
 
bei 200€uronen brauchst du eigentlich gar nicht anfangen zu suchen.
 
Los schreibs ihm noch einer, dass 200€ zu wenig sind :D
(Vllt warten wir erstmal auf seine Reaktion)

Außerdem lässt sich gebraucht einiges günstig "ergattern", einen AGB könnte man auch selbst bauen etc. .... aber gerade bei Wakü gibt es doch sehr viel im Angebot. Das Problem wird nur der teure GPU-Kühler sein und dass man beim OC selbst mit nem Triple die Lüfter noch ordentlich rotieren lassen muss, oder?
 
Geht doch. Jetzt können die Freaks zusammenstellen ;D
Gebraucht gibt's viel im Forum, hier oder im Luxx. Gerade Schraubtüllen, Schlauch usw. haben viele oft zum Verkauf, auch Radiatoren usw.
 
Zuletzt bearbeitet:
wie beschrieben, Case = wichtig zu wissen ;).
Ich hab z.B. 2x240mm Slim Radis in meinem CM690II sehr leise bin zufrieden. Meine Aquastream XT Hab ich auf dem Kopf in den 3,5Zoll schacht gehängt, entkoppelt und schön leise :).

Wie gesagt, also 300€ "mindestens"!
 
wenn die kunststoffabdeckung halbwegs stabil ist bekommt man in die seite auf jedenfall nen 240er rein, dazu hinten noch nen 140er und dann sollte das auch reichen
 
wenn die kunststoffabdeckung halbwegs stabil ist bekommt man in die seite auf jedenfall nen 240er rein, dazu hinten noch nen 140er und dann sollte das auch reichen

ganz großes Kino, haste dann en Seitenteil, das man dann nicht wegnehmen kann ohne den Kühlkreislauf zu öffnen... außer man benutzt schnellkupplungen jedoch finde ich diese "sch...." Drosseln den durchfluss etc. und sind noch teuer dazu.
 
Wie wärs mit einem Ausschnitt im Deckel? Je nach Platz zwischen Deckel und Mainboard imho machbar...

Da würde dann acuh ein 360er reinpassen...
 
aber funktioniert...
ich mein ich hab selbst in ne lanbox lite ne wäkü reinbekommen und ich mache jede wette das dort weniger platz ist also wird es auch mit diesem gehäuse funktionieren.
so schlimm ists nun auch nicht mit den schnell verschlüssen
 
Für eine interne Wakü ist dieses Gehäuse nicht geeignet - nicht wenn die GPU auch gekühlt werden soll.
 
Also gebraucht kannste dir schon gut was fuer 250 schiessen. Gerade weil es Forummaessig immer große Bundlerabatte gibt. Solltest du Neukaufen kommen viele kleine Sachen zusammen. Das geht von Anschluessen ueber Luefterkabel, aber du kommst nochmal schnell auf 80 Zuschlag.
Du kannst auch einen guten Deal dir sichern, indem du deine Karte verkaufst und dafuer eine mit vorinstalliertem Kuehler kaufst.
Die 5870 gehen fuer 170 weg.

Aber hier ein kleines Beispiel der "gebraucht Wakue", die Richtung high-end geht:

Mora 2 mit Loonies etwa 110
Pumpe inkl Shoggy 45
Schlauch/Anschluesse/Wasserzusatz/Kleinteile 40
CPU Kuehler 25
Agb 10 (single bay)

= 230€
(dazu kommen dann nochmal etwa 35 €, die in irgendwas Unbeachtetes fließen.)

Und mit der GK muesstes du noch schauen.

Wenn du allerdings das Rund-um-Sorglospaket moechtest muss man schnell tief in die Tasche greifen. Allein ein Paar Schnellkupplungen, die nicht den Durchfluss gravierend mindern, kosten knapp 30€
 
Zuletzt bearbeitet:
Zuletzt bearbeitet:
Also ich mach das ja gerade, nen Triple in den Deckel, bei meinem Midgard. Ich finde, gerade als "Neuling", und wenn man nicht sehr begabt in handwerklichen Dingen ist, dann ist das schon ziemlich schwer. Das CM sieht jetzt auch nicht so aus, als könnte man da in den Deckel was einlassen. Und wenn, dann mit sehr viel Arbeit und der Frage, wie "schön" es danach noch aussieht.

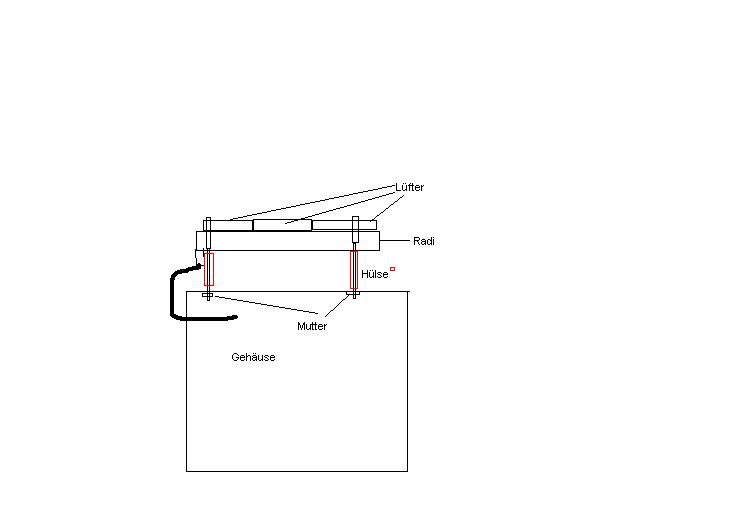
Was ich mir vorstellen könnte: In den Gehäusedeckel mind. 4 Löcher bohren, für die äußeren Löcher des Radiators. Dann lange Schrauben besorgen, die durch den Lüfter, Radiator, Gehäusedeckel gesteckt werden. Von unten (also im Inneren des Gehäuses) kommt eine Mutter dran, von oben zwischen Radiator und Gehäusedeckel noch irgendwas, was "dämmt" bzw. wo der Radiator aufliegt, Gummihülse oder sowas.

Ich persönlich würde mir die WasserkühlungsFAQ bzw. empfohlenen Zusammenstellung anschauen und dann im Forum auf Artikelsuche gehen. Pumpe kann man ja neu nehmen, aber Schraubtüllen usw. haben ja kaum Verschleiß. Wenn der gebrauchte Radi keine Beschädigungen hat wohl auch kein Problem.
 

Anhänge

  • vorschlag ....JPG
    vorschlag ....JPG
    14,7 KB · Aufrufe: 140
AMD Ryzen 9 9950X3D2
Zurück
Oben